Mặt Bằng Shophouse Eaton Park Quận 2 là sự kết hợp hoàn hảo giữa không gian kinh doanh và không gian sống, mang đến một phong cách sống hiện đại và năng động. Tọa lạc tại tầng trệt của các tòa nhà, shophouse Eaton Park được thiết kế với mặt tiền rộng rãi, không gian bên trong linh hoạt và có thể tùy chỉnh theo nhu cầu sử dụng.
Hotline Eaton Park Mua Bán Cho Thuê Shophouse Eaton Park Quận 2 : 0933.098 890
Dự án Eaton Park gồm các căn hộ cao cấp tọa lạc tại vị trí đắc địa trên mặt tiền đường Mai Chí Thọ, phường An Phú, TP. Thủ Đức, đang thu hút sự chú ý của đông đảo khách hàng và nhà đầu tư. Được phát triển bởi Gamuda Land, một chủ đầu tư danh tiếng đến từ Malaysia, dự án hứa hẹn mang đến không gian sống xanh, hiện đại và tiện nghi cho cư dân. Bên cạnh các căn hộ cao cấp, dự án còn cung cấp các căn shophouse với thiết kế mặt bằng tối ưu, đáp ứng nhu cầu kinh doanh đa dạng.

Tổng Quan Về Shophouse Eaton Park Quận 2
Shophouse Eaton Park bao gồm 20 căn shophouse, căn hộ Eaton Park mang đến đa dạng lựa chọn cho các nhà đầu tư và doanh nghiệp. Các căn shophouse được chia thành 2 loại chính: shophouse 1 tầng và shophouse 2 tầng, với diện tích đa dạng từ 47.4m2 đến 417.7m2.

Mặt Bằng Shophouse Eaton Park – Thông Minh Và Linh Hoạt
Mặt bằng shophouse tại Eaton Park được thiết kế thông minh, tối ưu hóa không gian sử dụng và tạo điều kiện thuận lợi cho việc kinh doanh. Với thiết kế 2 tầng, shophouse có thể được sử dụng cho nhiều loại hình kinh doanh khác nhau, từ cửa hàng thời trang, nhà hàng, quán cà phê đến văn phòng làm việc.

Mặt bằng tầng 1 của shophouse Eaton Park được thiết kế mở, không có vách ngăn giữa các khu vực chức năng, tạo không gian rộng rãi và thoáng đãng. Điều này cho phép chủ sở hữu tự do bố trí và sắp xếp không gian theo nhu cầu sử dụng của mình. Mặt tiền rộng rãi giúp tối đa hóa khả năng trưng bày sản phẩm và thu hút khách hàng tại chung cư Quận 2.

Tầng 2 của shophouse Eaton Park được thiết kế linh hoạt, có thể được sử dụng làm không gian văn phòng, kho hàng hoặc không gian sinh hoạt riêng cho gia đình. Với thiết kế này, shophouse Eaton Park không chỉ là nơi kinh doanh lý tưởng mà còn là một tổ ấm hoàn hảo cho gia đình.
Hotline Eaton Park hỗ trợ 24/7 : 0933.098 890
Mặt bằng shophouse Phase 1 Eaton Park: A5, A6, Podium


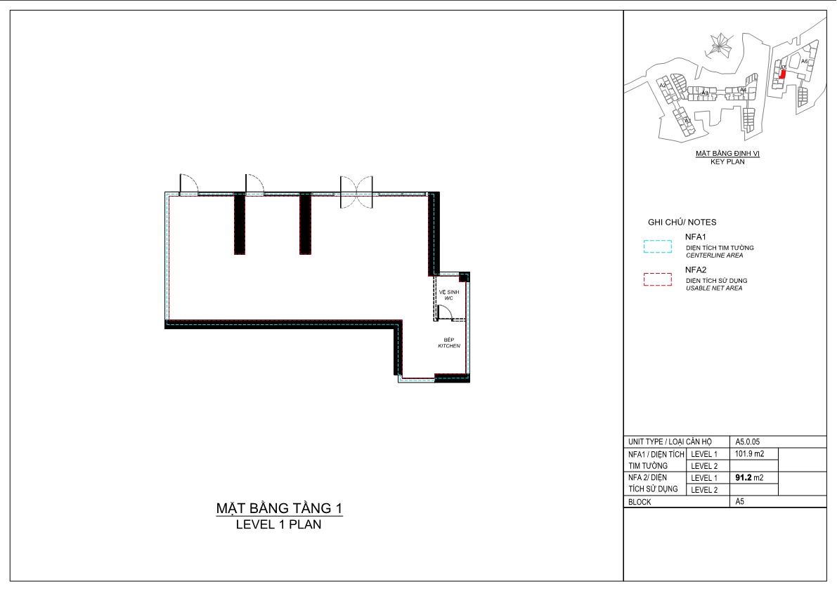
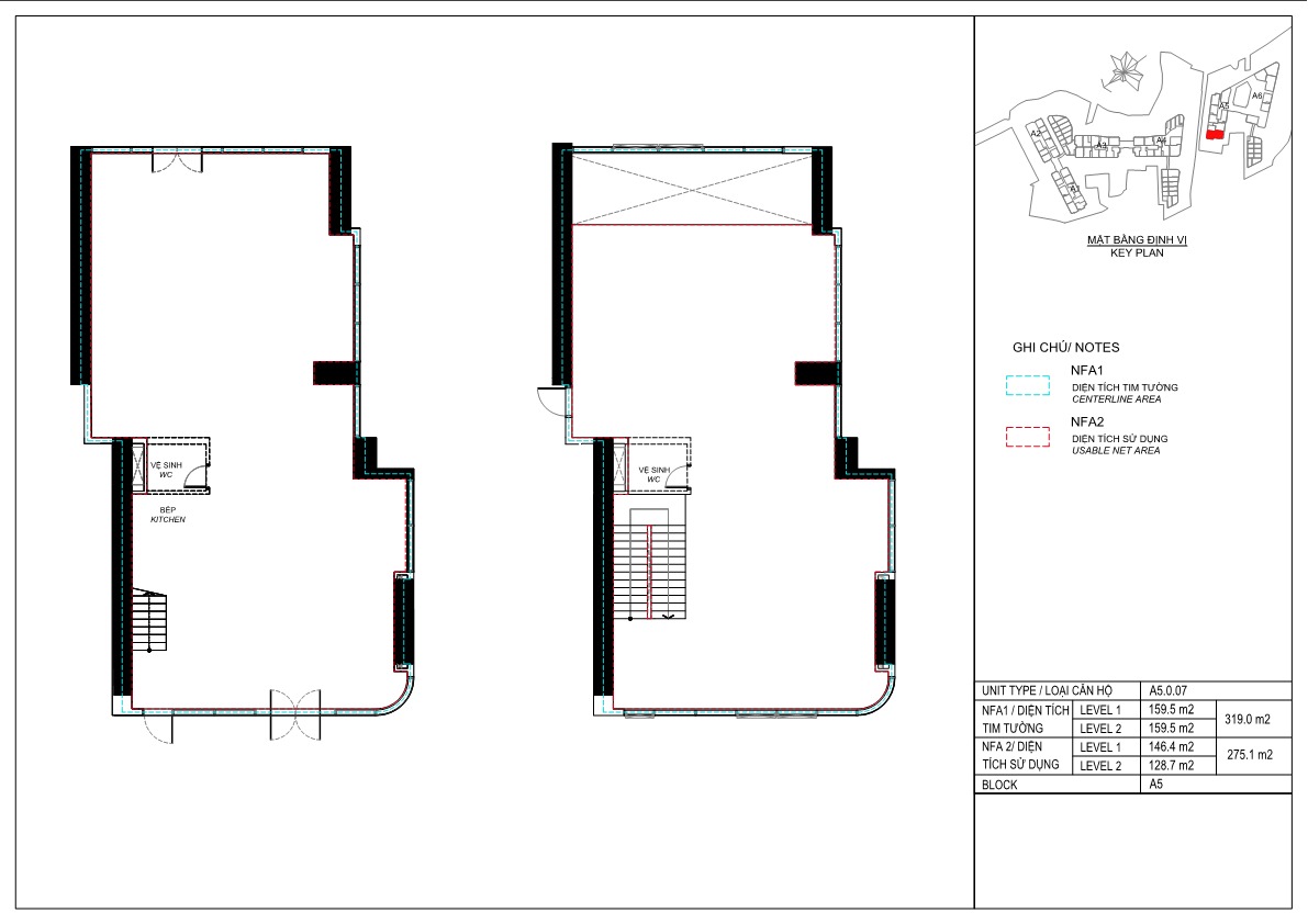
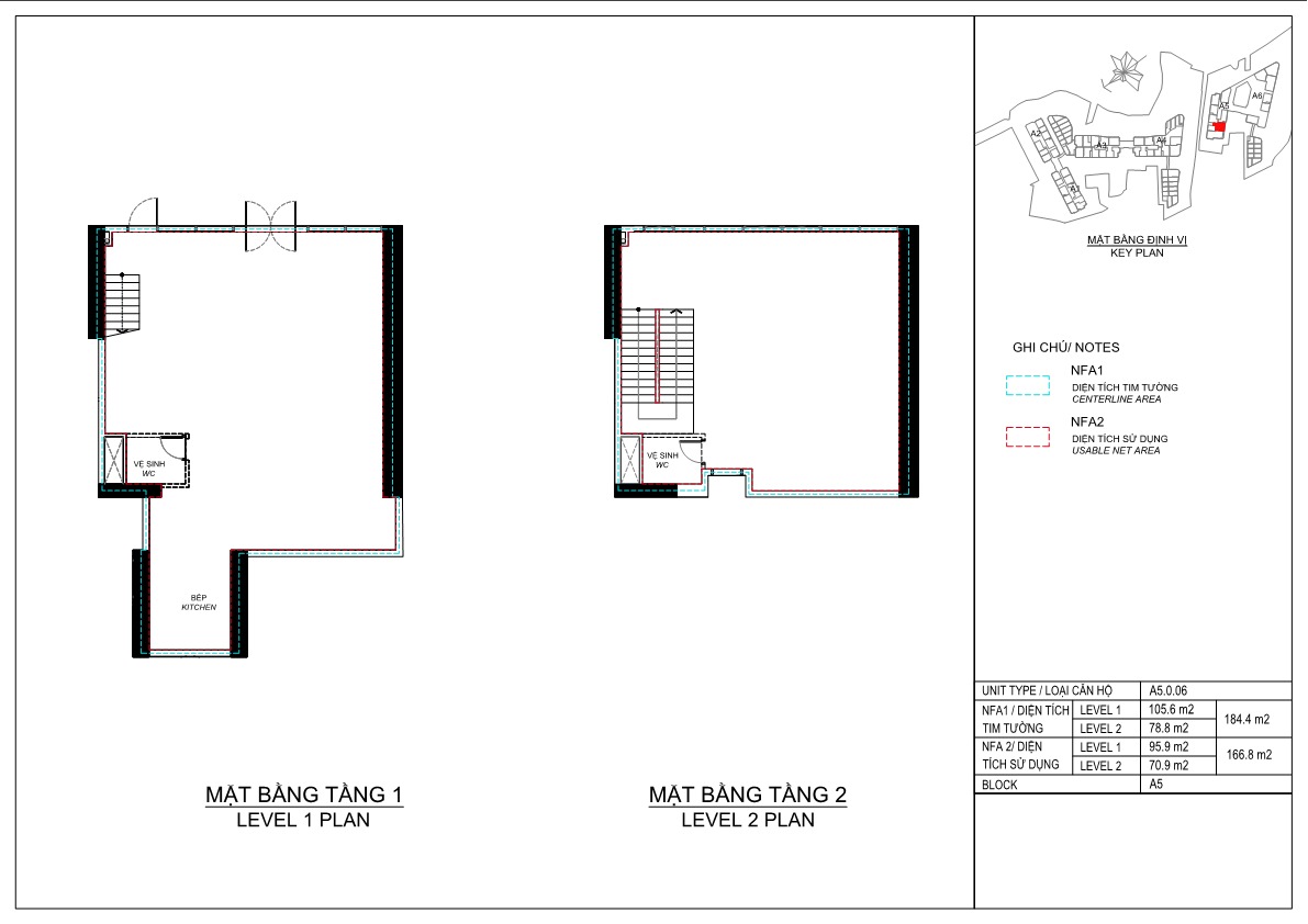
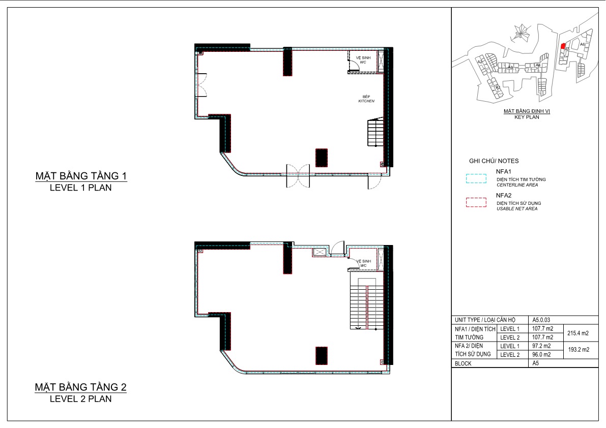
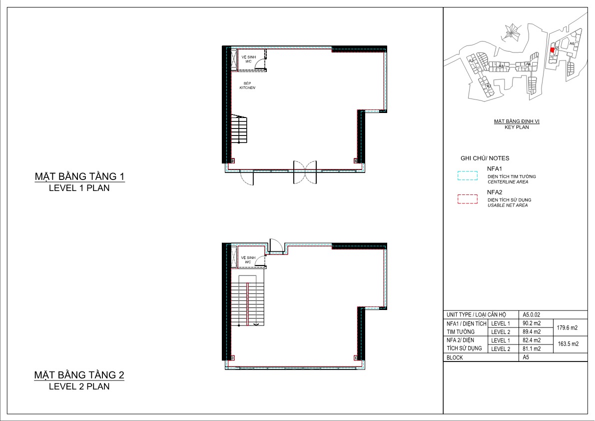
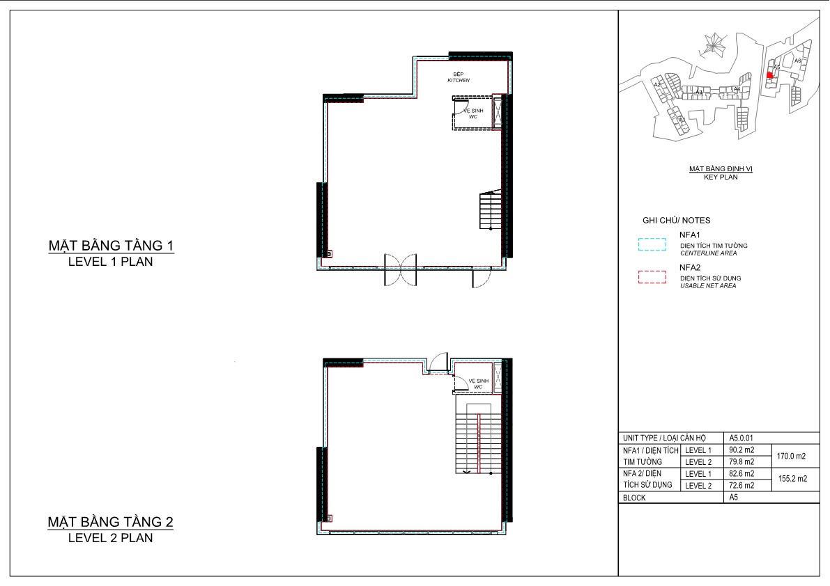
Mặt bằng shophouse block A5 Eaton Park Quận 2:
- Số lượng: 8 căn shophouse, bao gồm 4 căn 1 tầng và 4 căn 2 tầng.
- Diện tích:
- 1 tầng: 53.5 – 138.2 m2 (diện tích tim tường) và 47.4 – 130 m2 (diện tích thông thủy).
- 2 tầng: 107.7 – 159.5 m2 (diện tích tim tường) và 93.6 – 146.4 m2 (diện tích thông thủy).
- Thiết kế:
- Tầng 1: Không gian mở, linh hoạt, phù hợp nhiều loại hình kinh doanh.
- Tầng 2 (căn 2 tầng): Có thể sử dụng làm không gian kinh doanh mở rộng, văn phòng hoặc không gian ở.
- Vệ sinh: Mỗi tầng đều có nhà vệ sinh riêng.
- Điểm nổi bật:
- Mặt tiền rộng: Các căn shophouse đều có mặt tiền rộng, từ 5.1m đến 7.5m, tạo không gian trưng bày sản phẩm và thu hút khách hàng.
- Vị trí: Nằm ở tầng trệt của tòa A5, tiếp giáp với khu dân cư và tiện ích nội khu, thuận lợi cho kinh doanh.
- Linh hoạt: Bàn giao thô, khách hàng có thể tự do thiết kế và bố trí không gian theo nhu cầu.
- Tiện ích: Gần các tiện ích như hồ bơi, công viên, khu vui chơi trẻ em,…


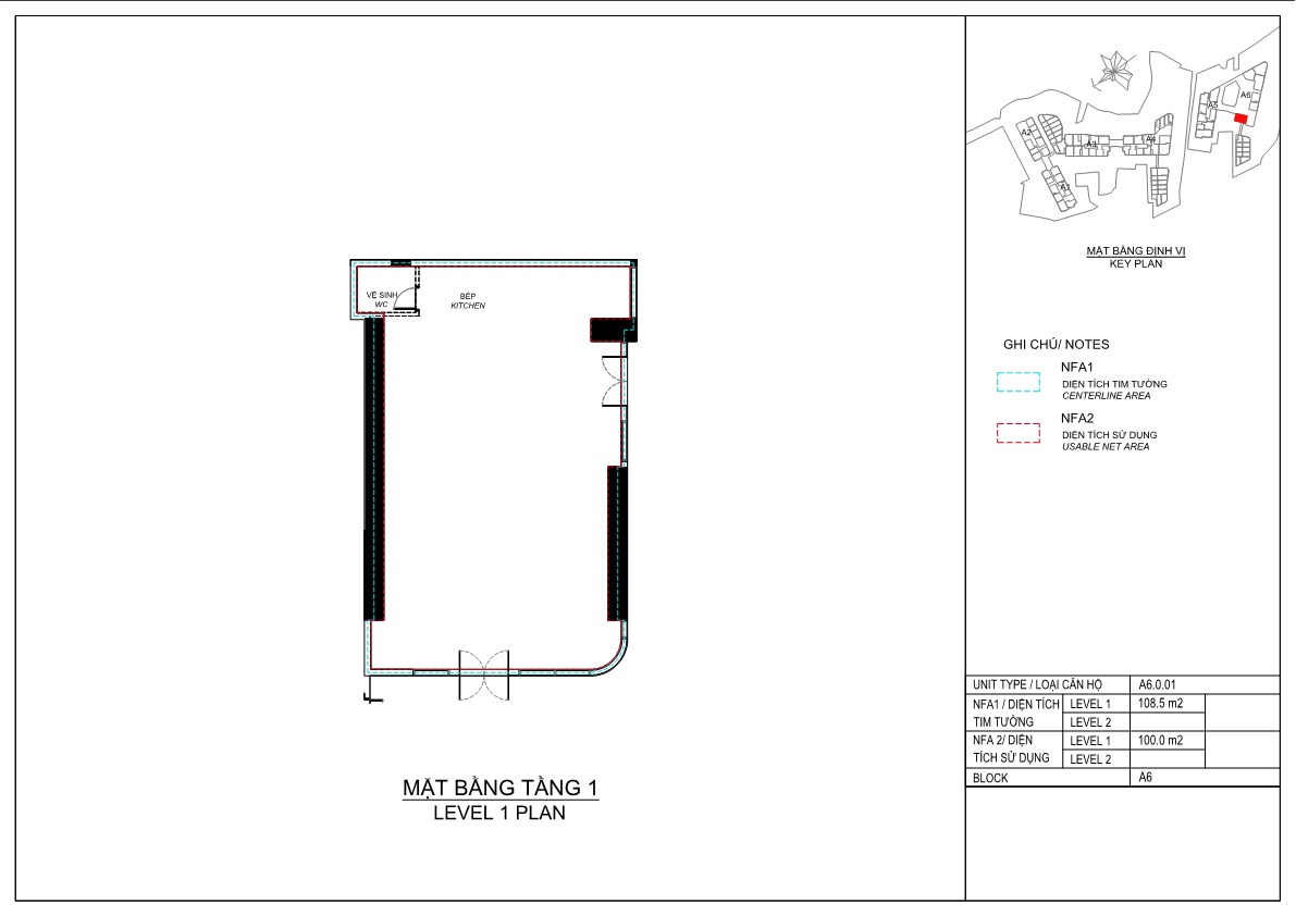
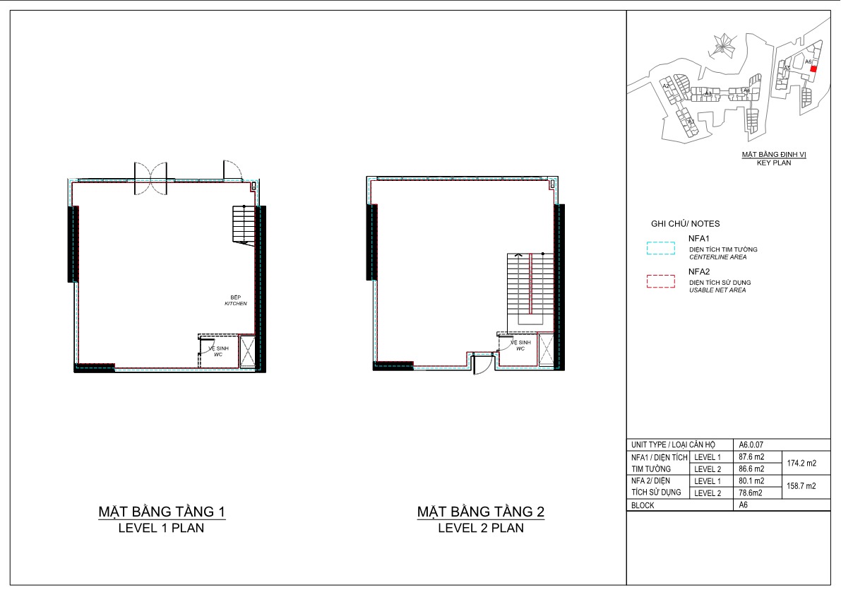
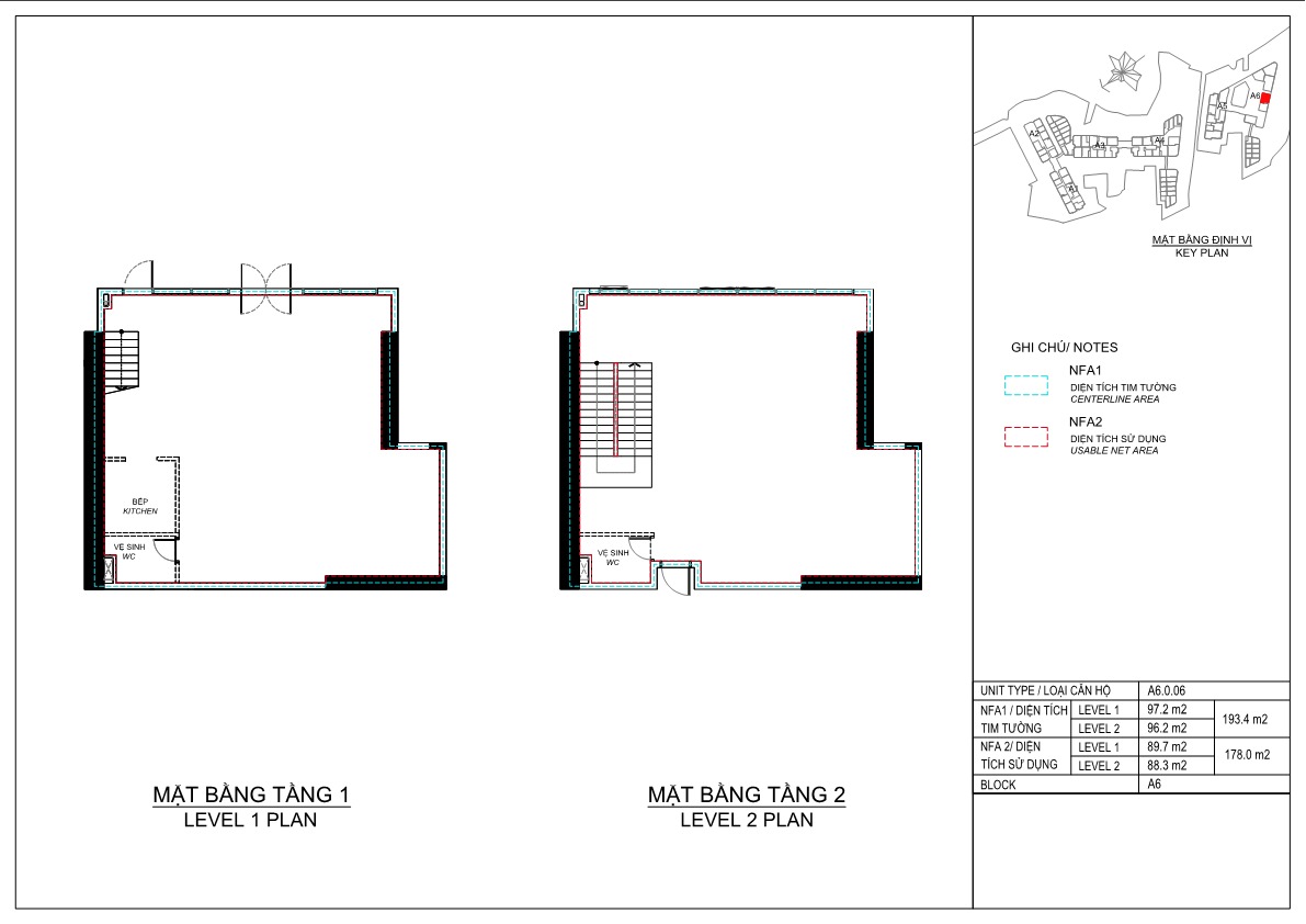
Mặt bằng shophouse block A6 Eaton Park Quận 2.
- Số lượng: 7 căn shophouse, bao gồm 2 căn 1 tầng và 5 căn 2 tầng.
- Diện tích:
- 1 tầng: 108.5 m2 – 406.2 m2 (diện tích tim tường) và 97.2 m2 – 417.7 m2 (diện tích thông thủy).
- 2 tầng: 131.4 m2 – 181.3 m2 (diện tích tim tường) và 125.1 m2 – 167.8 m2 (diện tích thông thủy).
- Thiết kế:
- Tầng 1: Không gian mở, linh hoạt, phù hợp nhiều loại hình kinh doanh.
- Tầng 2 (căn 2 tầng): Có thể sử dụng làm không gian kinh doanh mở rộng, văn phòng hoặc không gian ở.
- Vệ sinh: Mỗi tầng đều có nhà vệ sinh riêng.
- Điểm nổi bật:
- Mặt tiền rộng: Các căn shophouse đều có mặt tiền rộng, từ 5.1m đến 7.5m, tạo không gian trưng bày sản phẩm và thu hút khách hàng.
- Vị trí: Nằm ở tầng trệt của tòa A6, gần khu vực trường học và tiện ích nội khu, thuận lợi cho kinh doanh.
- Linh hoạt: Bàn giao thô, khách hàng có thể tự do thiết kế và bố trí không gian theo nhu cầu.
- Tiện ích: Gần các tiện ích như trường học, công viên, khu vui chơi trẻ em,…
- Có căn shophouse lớn: Căn A6.0.02 có diện tích lớn nhất, phù hợp làm siêu thị mini, showroom, trung tâm thương mại,…


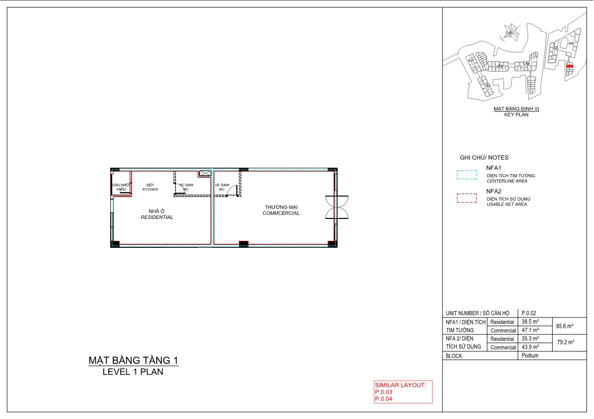
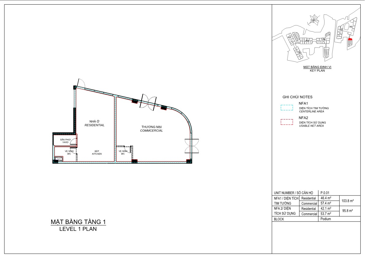
Mặt bằng shophouse podium Eaton Park Quận 2:
- Số lượng: 5 căn shophouse 1 tầng.
- Diện tích: 38.5 – 62.1 m2 (diện tích tim tường) và 35.3 – 57.4 m2 (diện tích thông thủy).
- Thiết kế: Không gian mở, phù hợp với các cửa hàng nhỏ, quán cà phê, cửa hàng tiện lợi,…
- Điểm nổi bật:
- Vị trí: Nằm ở tầng trệt của khối đế, gần các tiện ích chung của dự án và khu vực sảnh đón cư dân, có lượng khách hàng tiềm năng lớn.
- Giá cả: Có thể có giá thấp hơn so với shophouse ở các block căn hộ.
- Tiện ích: Gần các tiện ích như hồ bơi, công viên, khu vui chơi trẻ em,…

Lưu ý:
- Tất cả các căn shophouse đều được bàn giao thô, không bao gồm hoàn thiện nội thất, bếp, vệ sinh và tường ngăn.
- Khách hàng có thể tùy chỉnh thiết kế và bố trí không gian theo nhu cầu sử dụng.
Lời Khuyến:
Để biết thêm thông tin chi tiết về mặt bằng và giá bán shophouse Eaton Park, quý khách hàng vui lòng liên hệ với chúng tôi. Đội ngũ chuyên viên tư vấn của chúng tôi luôn sẵn sàng hỗ trợ bạn mọi lúc mọi nơi.
Hotline Eaton Park hỗ trợ 24/7 : 0933.098 890
Shophouse Eaton Park gồm các loại diện tích nào ?
Shophouse Eaton Park cung cấp 2 loại shophouse chính:
- Shophouse 1 tầng (loại 1): Diện tích thông thủy từ 82.4m2 – 146.4m2, diện tích tim tường từ 90.2m2 – 159.5m2.
- Shophouse 1 tầng (loại 2): Diện tích thông thủy từ 47.4m2 – 97.2m2, diện tích tim tường từ 53.5m2 – 107.7m2.






- Shophouse 2 tầng (loại 1): Diện tích thông thủy từ 155.2m2 – 275.1m2, diện tích tim tường từ 170.0m2 – 319.0m2.
- Shophouse 2 tầng (loại 2): Diện tích thông thủy từ 93.6m2 – 193.2m2, diện tích tim tường từ 107.9m2 – 215.4m2.

Mặt bằng Shophouse Eaton Park Quận 2 
Mặt bằng Shophouse Eaton Park Quận 2 
Mặt bằng Shophouse Eaton Park Quận 2 
Mặt bằng Shophouse Eaton Park Quận 2 
Mặt bằng Shophouse Eaton Park Quận 2 
Mặt bằng Shophouse Eaton Park Quận 2 
Mặt bằng Shophouse Eaton Park Quận 2 
Mặt bằng Shophouse Eaton Park Quận 2 
Mặt bằng Shophouse Eaton Park Quận 2 
Mặt bằng Shophouse Eaton Park Quận 2 
Mặt bằng Shophouse Eaton Park Quận 2 
Mặt bằng Shophouse Eaton Park Quận 2
Shophouse Eaton Park – Điểm Nổi Bật Trong Thiết Kế
Thiết kế shophouse tại Eaton Park mang đến nhiều điểm nổi bật:
- Mặt tiền rộng: Thuận tiện cho việc trưng bày sản phẩm và thu hút khách hàng.
- Không gian linh hoạt: Có thể tùy chỉnh theo nhu cầu sử dụng của từng loại hình kinh doanh.
- Tầng lửng: Tạo thêm không gian sử dụng, có thể làm văn phòng, kho hoặc khu vực nghỉ ngơi.
- Sân thượng: Không gian lý tưởng để tổ chức các sự kiện hoặc tạo khu vườn thư giãn.
- Bàn giao thô: Khách hàng có thể tự do thiết kế và hoàn thiện nội thất theo ý thích.
- Vật liệu hoàn thiện cao cấp: Đảm bảo tính thẩm mỹ và độ bền cho công trình.
- Hệ thống an ninh 24/7: Đảm bảo an toàn cho cư dân và tài sản.

Phối cảnh Shophouse Eaton Park Quận 2 
Phối cảnh Shophouse Eaton Park Quận 2 
Phối cảnh Shophouse Eaton Park Quận 2 
Phối cảnh Shophouse Eaton Park Quận 2 
Phối cảnh Shophouse Eaton Park Quận 2
Shophouse Eaton Park – Ưu Điểm Vượt Trội Về Vị Trí
Vị trí đắc địa của shophouse Eaton Park mang đến nhiều lợi thế cho việc kinh doanh:
- Nằm trong khu đô thị sầm uất: Với hơn 2000 căn hộ cao cấp, Eaton Park là một khu đô thị sầm uất, mang đến một lượng lớn khách hàng tiềm năng cho các shophouse.
- Mặt tiền đường lớn: Shophouse Eaton Park nằm trên mặt tiền đường Mai Chí Thọ, một trong những tuyến đường huyết mạch của TP. Thủ Đức, giúp tăng khả năng tiếp cận khách hàng và nâng cao giá trị thương hiệu.
- Gần các tiện ích: Dự án nằm gần các tiện ích ngoại khu như trường học, bệnh viện, trung tâm thương mại, mang đến sự thuận tiện cho cả cư dân và khách hàng của shophouse.
- Giao thông thuận tiện: Vị trí thuận lợi giúp kết nối dễ dàng đến các khu vực khác trong thành phố, tạo điều kiện thuận lợi cho việc kinh doanh và vận chuyển hàng hóa.
- Tiềm năng tăng giá cao: Với vị trí đắc địa và tiềm năng phát triển của khu vực, giá trị shophouse Eaton Park được dự đoán sẽ tăng cao trong tương lai.



Liên Hệ Ngay Phòng Kinh Doanh Eaton Park
Quý khách hàng quan tâm đến dự án Eaton Park, đặc biệt là các căn shophouse, vui lòng liên hệ với chúng tôi để được tư vấn chi tiết và nhận thông tin mới nhất về tiến độ dự án. Đội ngũ chuyên viên tư vấn của chúng tôi luôn sẵn sàng hỗ trợ bạn mọi lúc mọi nơi.
Thông Tin Liên Hệ:
- Hotline: (+84) 0933.098.890 (Phone/Zalo/Viber/Wechat/Whatsapp)
- Email: locphathung.com.vn@gmail.com
- Website: https://angialand.com.vn/eaton-park-gamuda-land-quan-2.html
Hotline Eaton Park hỗ trợ 24/7 : 0933.098 890



















