Dự án SEI HARMONY Bình Tân: Giá Bán 2025, Pháp Lý & Đánh Giá Chi Tiết
Dự án SEI HARMONY Bình Tân đang là tâm điểm thu hút sự quan tâm của nhiều khách hàng và nhà đầu tư tìm kiếm một sản phẩm nhà phố compound tại khu Tây Sài Gòn. Nổi bật với quy hoạch bài bản trong một khu compound khép kín, dự án mang đến một không gian sống an toàn, tiện nghi với pháp lý vững chắc. Đặc biệt, đây là một trong những dự án hiếm hoi tại TP.HCM có sổ hồng riêng từng căn, được phát triển bởi chủ đầu tư Tokyo AA uy tín từ Nhật Bản.

Để cung cấp cho quý anh chị góc nhìn sâu sắc và thông tin xác thực nhất về dự án này, tôi là Nguyễn Lộc Nghĩa, chuyên viên tư vấn với nhiều năm kinh nghiệm tại thị trường khu Tây, sẽ đồng hành cùng anh chị trong bài viết phân tích chi tiết dưới đây. Nghĩa hiểu rằng, khi tìm hiểu để mua bán dự án SEI HARMONY, anh chị sẽ quan tâm nhất đến giá bán SEI HARMONY, bảng giá chi tiết, các phương thức thanh toán và tiềm năng thực tế. Tất cả sẽ được phân tích cặn kẽ và minh bạch ngay sau đây.

otline Mua Bán + Cho Thuê + Ký Gửi Nhà Phố Sei Harmony Bình Tân: 0937.098.890
TỔNG QUAN DỰ ÁN SEI HARMONY BÌNH TÂN – VIÊN NGỌC QUÝ GIỮA LÒNG PHỐ THỊ

Thông tin chi tiết dự án SEI HARMONY
Để anh chị có cái nhìn tổng thể và dễ dàng nắm bắt những thông tin cốt lõi, Nghĩa đã hệ thống hóa các dữ liệu quan trọng nhất của dự án vào bảng dưới đây:
| Tên chính thức | SEI HARMONY |
| Vị trí tọa lạc | Mặt tiền đường Lê Tấn Bê, Phường An Lạc, Quận Bình Tân, TP.HCM |
| Đơn vị phát triển dự án | Công ty Cổ phần Tokyo AA |
| Tổng quy mô | 10.608,2 m² |
| Mật độ xây dựng | Cực thấp, chỉ 72.84% dành cho đất ở, còn lại là giao thông và cây xanh |
| Loại hình sản phẩm | Nhà phố liền kề, xây sẵn trong khu compound khép kín, an ninh |
| Số lượng sản phẩm | Phiên bản giới hạn, chỉ 132 căn |
| Các phân khu chính | Bao gồm 3 phân khu: Sora (27 căn), Shin (40 căn), Mirai (65 căn) |
| Pháp lý dự án | Sổ hồng riêng từng căn, sở hữu lâu dài – bảo chứng vàng cho tài sản |
| Hệ thống tiện ích | Chuỗi 29+ tiện ích nội khu đặc sắc, mang đậm tinh thần Nhật Bản |
| Tiêu chuẩn bàn giao | Hoàn thiện mặt ngoài theo thiết kế đồng bộ, giao thô bên trong để gia chủ tự do sáng tạo |
| Đối tác phân phối | Được tin tưởng phân phối bởi An Gia Land, đơn vị uy tín trên thị trường. |

Câu chuyện và cảm hứng kiến tạo nên một SEI HARMONY đầy ý nghĩa
Thưa anh chị, một dự án có chiều sâu không chỉ nằm ở những viên gạch, những bức tường, mà còn ở câu chuyện và triết lý mà chủ đầu tư gửi gắm. Khi tìm hiểu sâu về SEI HARMONY, Nghĩa thực sự tâm đắc với ý nghĩa sâu sắc đằng sau nó.

Cái tên “SEI HARMONY” là sự kết hợp tinh tế giữa hai ngôn ngữ, mang một thông điệp trọn vẹn. “SEI” (盛) trong tiếng Nhật không chỉ đơn thuần là sự thịnh vượng về vật chất, mà còn là sự phồn vinh trong tâm hồn, sự phát triển bền vững tạo nên một cuộc sống thăng hoa. “HARMONY” lại là “Sự Hòa Hợp” – một giá trị cốt lõi trong văn hóa Á Đông. Đó là sự hòa hợp giữa con người với thiên nhiên trong lành, giữa các thành viên trong gia đình, và là sự dung hòa giữa nét đẹp truyền thống và nhịp sống hiện đại.

Triết lý này được cụ thể hóa bằng tinh thần “Zen Living” – Sống Thiền. Đây không phải là một phong cách xa hoa, hào nhoáng bề ngoài, mà là việc tạo ra một không gian sống có chiều sâu, giúp con người sống chậm lại, cảm nhận sâu sắc hơn và tìm thấy sự an yên trong tâm hồn. Tại dự án SEI HARMONY Bình Tân, Zen được ứng dụng qua những bố cục cân bằng, màu sắc dịu nhẹ, vật liệu gần gũi với tự nhiên và những đường nét kiến trúc tối giản đầy chủ đích.

Đặc biệt hơn nữa, câu chuyện về 3 phân khu SORA – SHIN – MIRAI được lấy cảm hứng từ chính mô hình gia đình “tam đại đồng đường” mà rất nhiều người Việt chúng ta trân quý. Đó không chỉ là sống chung, mà là cùng nhau trưởng thành, chia sẻ và vun đắp hạnh phúc.
- Phân khu SORA (空 – Bầu trời): Đại diện cho thế hệ Ông Bà. Giống như bầu trời rộng lớn, bao dung che chở cho vạn vật, ông bà là nền tảng tinh thần, là cội nguồn vững chắc cho cả gia đình.
- Phân khu SHIN (真 – Chân thật, Tinh túy): Tượng trưng cho thế hệ Cha Mẹ. Họ là cầu nối tinh hoa, là thế hệ kế thừa những giá trị truyền thống của “SORA” và kiến tạo nền tảng cho “MIRAI”. Họ là hiện tại, là những giá trị chân thật nhất.
- Phân khu MIRAI (未来 – Tương lai): Là thế hệ Con Cháu, là tương lai hứa hẹn với những tiềm năng vô tận. Các em được nuôi dưỡng bởi tình yêu thương của ông bà và sự chăm sóc, định hướng của cha mẹ, hứa hẹn sẽ là một thế hệ ưu tú.
Chính câu chuyện đầy nhân văn này đã biến SEI HARMONY từ một dự án bất động sản thành một “Tổ Ấm Hạnh Phúc” (Homes of Happiness), nơi giá trị gia đình được đặt lên hàng đầu.
Hotline Mua Bán + Cho Thuê + Ký Gửi SEI Harmony: 0933.098.890
VỊ TRÍ VÀNG VÀ TIỀM NĂNG BỨT PHÁ CỦA NHÀ PHỐ SEI HARMONY
Địa chỉ chiến lược, kết nối đa chiều, thuận tiện di chuyển
Nhà phố SEI HARMONY sở hữu một vị trí mà Nghĩa đánh giá là cực kỳ chiến lược tại mặt tiền đường Lê Tấn Bê, phường An Lạc, quận Bình Tân. Đây không chỉ là một địa chỉ, mà là tâm điểm của một hệ sinh thái đô thị đang chuyển mình mạnh mẽ, là giao điểm kết nối khu Tây Sài Gòn với trung tâm thành phố và các tỉnh miền Tây.

Sự thuận tiện trong kết nối là yếu tố mà bất kỳ ai cũng có thể cảm nhận ngay:
- Vài phút ra Đại lộ Võ Văn Kiệt: Từ dự án, chỉ mất khoảng 2-3 phút để kết nối vào Đại lộ Võ Văn Kiệt. Đây là tuyến đường xương sống, không có đèn đỏ, giúp việc di chuyển vào trung tâm Quận 1, Quận 5, Quận 8 hay khu đô thị Thủ Thiêm chỉ mất khoảng 20-25 phút, cực kỳ thông thoáng.

- Cửa ngõ miền Tây: Liền kề Quốc lộ 1A và vòng xoay An Lạc, việc di chuyển về các tỉnh Đồng bằng sông Cửu Long trở nên dễ dàng hơn bao giờ hết. Đây là lợi thế lớn cho các gia đình có quê ở miền Tây hoặc thường xuyên công tác tại khu vực này.
- Tiếp cận các trục đường sầm uất: Các tuyến đường lớn như Kinh Dương Vương, Tên Lửa, An Dương Vương bao quanh, tạo thành một mạng lưới giao thông hoàn chỉnh, dễ dàng tiếp cận các khu vực trung tâm của Bình Tân và Quận 6.
Vị trí của SEI HARMONY Bình Tân thực sự đã giải quyết được bài toán khó của nhiều người dân đô thị: vừa muốn sống trong một không gian yên tĩnh, riêng tư, lại vừa không muốn bị tách biệt khỏi nhịp sống sôi động và các tiện ích cần thiết.
Đón đầu tiềm năng tăng giá từ hai “siêu dự án” hạ tầng
Với kinh nghiệm nhiều năm, Nguyễn Lộc Nghĩa luôn khuyên khách hàng hãy nhìn vào quy hoạch hạ tầng để thấy được tiềm năng của một bất động sản. Và SEI HARMONY đang nằm ở vị trí hưởng lợi trực tiếp từ hai “cú hích” hạ tầng khổng lồ của thành phố.
- Tuyến Metro 3A (Bến Thành – Tân Kiên): Đây là yếu tố được mong chờ nhất. Tuyến metro này có chiều dài gần 20km, đi qua hàng loạt quận trung tâm và kết thúc tại Depot Tân Kiên, Bình Chánh. SEI HARMONY nằm rất gần các nhà ga tương lai như ga Hồ Ngọc Lâm và ga CV Ngã 3 An Lạc. Khi tuyến metro đi vào hoạt động, nó sẽ:
- Thúc đẩy giá trị bất động sản: Lịch sử đã chứng minh, giá đất các khu vực dọc tuyến metro luôn tăng trưởng mạnh mẽ, có thể từ 30-50% hoặc hơn. Đây là bảo chứng cho tiềm năng sinh lời bền vững.
- Giảm ùn tắc giao thông: Tạo ra một phương thức di chuyển công cộng hiện đại, nhanh chóng, giảm tải cho đường bộ.
- Phát triển đô thị: Thu hút dân cư, hình thành các trung tâm thương mại, dịch vụ sầm uất quanh các nhà ga.

- Dự án cải tạo Kênh Tham Lương – Bến Cát – Rạch Nước Lên: Một dự án trọng điểm khác đang được thành phố quyết liệt triển khai. Với tổng mức đầu tư hàng nghìn tỷ đồng, dự án sẽ biến một con kênh ô nhiễm thành một trục cảnh quan xanh mát, sạch đẹp, với đường giao thông hai bên kênh dài hơn 63km. Lợi ích mang lại là không thể đong đếm:
- Cải thiện môi trường sống: Giải quyết triệt để vấn đề ngập úng, ô nhiễm, mang lại không khí trong lành cho toàn khu vực.
- Nâng cấp giao thông và kết nối: Các tuyến đường ven kênh sẽ tạo ra những lộ trình di chuyển mới, thông thoáng, kết nối các quận huyện.
- Tăng giá trị bất động sản: Những bất động sản có “view kênh” sau cải tạo sẽ trở nên đắt giá, thu hút đầu tư và các dự án mới.

Sở hữu một nhà phố SEI HARMONY ngay từ bây giờ chính là hành động đi trước đón đầu, chờ đợi giá trị tài sản gia tăng một cách đột phá trong vài năm tới.
Hệ sinh thái tiện ích ngoại khu đủ đầy trong tầm tay
An cư tại SEI HARMONY đồng nghĩa với việc mọi nhu cầu của cuộc sống đều được đáp ứng một cách nhanh chóng. Chỉ trong vòng bán kính từ 5 đến 15 phút di chuyển, một thế giới tiện ích hiện hữu đã sẵn sàng phục vụ:
- Mua sắm & Giải trí: Đại siêu thị AEON Mall Bình Tân, Co.opmart Bình Tân, MM Mega Market Bình Phú, Chợ Lớn, Bến xe Miền Tây… đáp ứng mọi nhu cầu từ thiết yếu đến cao cấp.

- Chăm sóc sức khỏe: Hệ thống bệnh viện hàng đầu luôn sẵn sàng với Bệnh viện Quốc tế City (CIH), Bệnh viện Triều An, và Bệnh viện Nhi Đồng 3.

- Giáo dục toàn diện: Phụ huynh có thể an tâm với hệ thống trường học công lập và quốc tế đa dạng các cấp, cùng các trường đại học lớn như Đại học Kinh tế TP.HCM, Đại học Văn Hiến.



- Trung tâm kinh tế: Vị trí gần các KCN lớn như KCN Tân Tạo, KCN Lê Minh Xuân, KCN Vĩnh Lộc… không chỉ thuận tiện cho công việc mà còn mở ra tiềm năng cho thuê rất lớn, hướng đến đối tượng là các chuyên gia, kỹ sư nước ngoài và trong nước.
Hotline Mua Bán + Cho Thuê + Ký Gửi SEI Harmony: 0933.098.890
MẶT BẰNG & THIẾT KẾ ĐỘC ĐÁO – TINH HOA NHẬT BẢN TRONG LÒNG SÀI GÒN
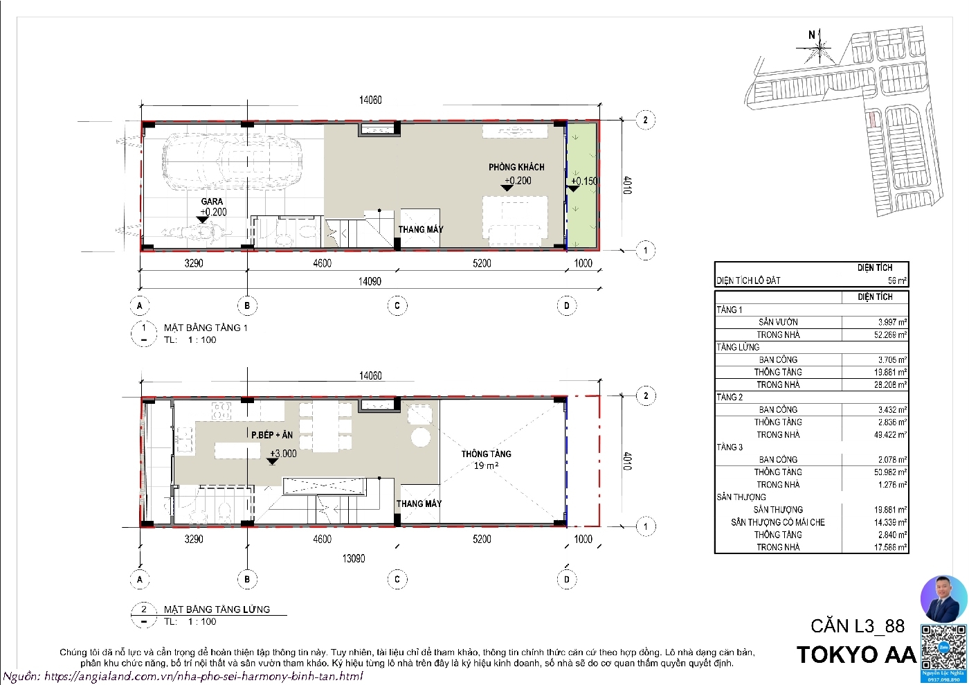
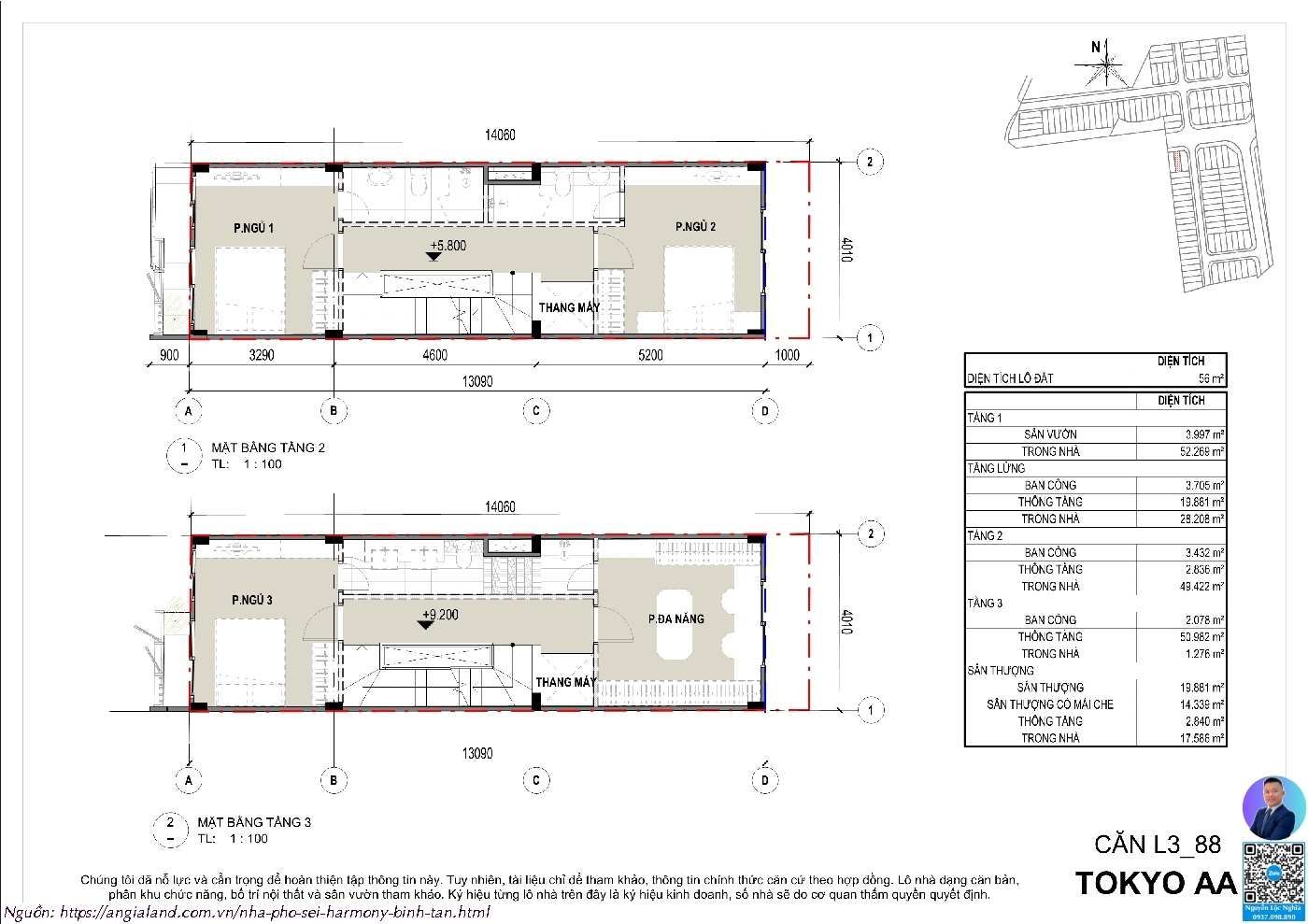
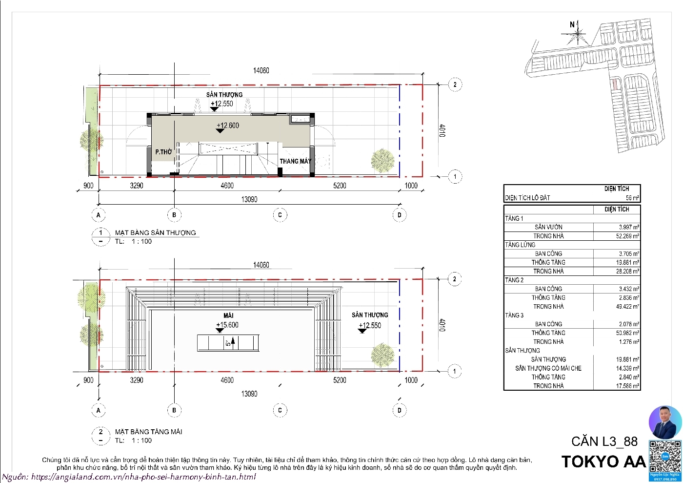
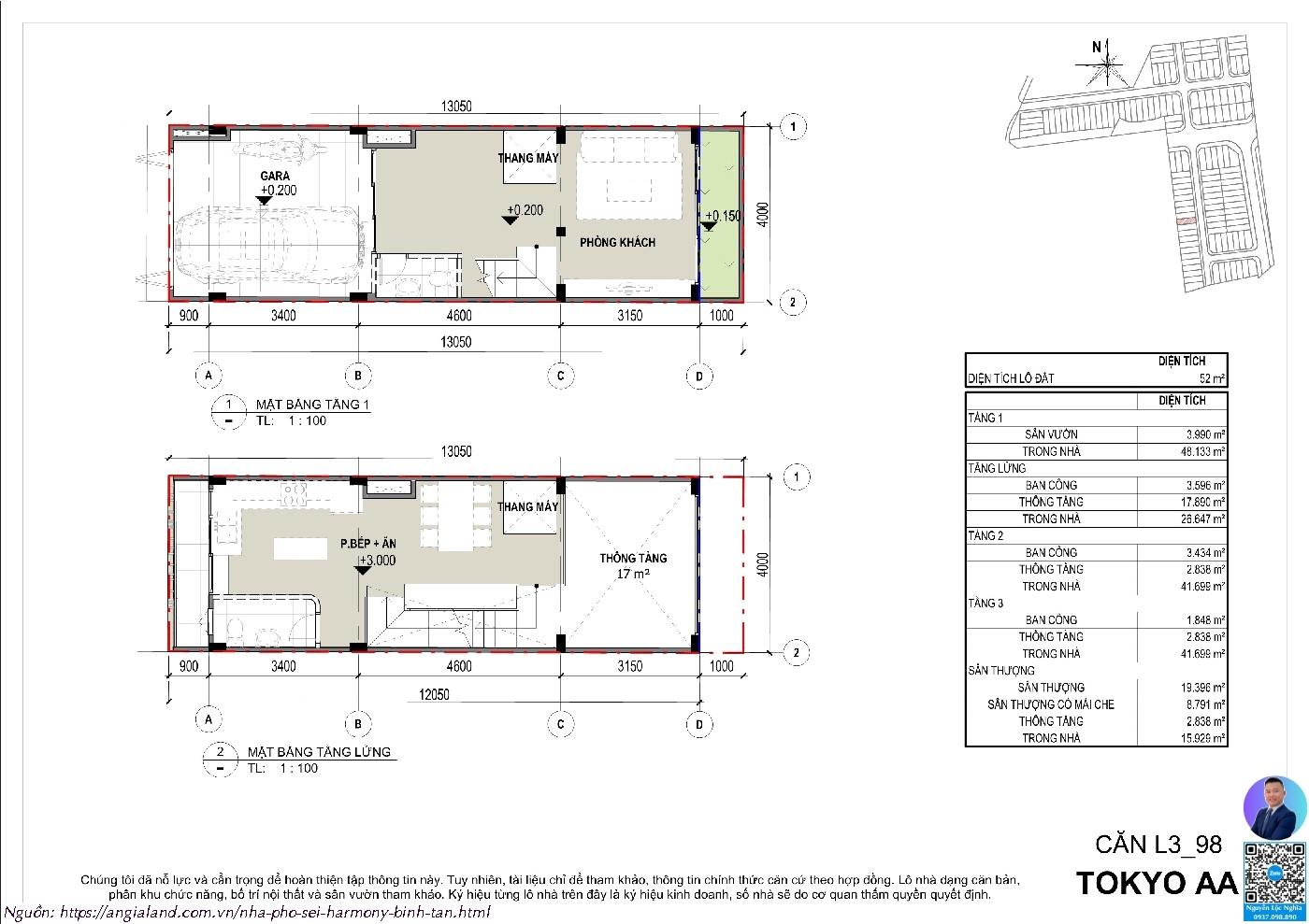
Phân tích chi tiết mặt bằng tổng thể khu compound 132 căn
Nhìn vào bản vẽ tổng thể, điều đầu tiên Nghĩa cảm nhận được là sự quy hoạch bài bản và tâm huyết của chủ đầu tư. Trên khu đất hơn 10.600 m², chỉ có 132 căn nhà được xây dựng, phần còn lại dành trọn cho không gian xanh và tiện ích. Tỷ lệ đất cây xanh và công trình công cộng chiếm gần 3% , cùng với diện tích đất giao thông hơn 24% tạo nên một không gian sống vô cùng thoáng đãng, không có cảm giác ngột ngạt thường thấy ở các khu dân cư nội đô.

Bấm vào link Xem chi tiết mặt bằng SEI Harmony Đầy Đủ Chi Tiết Diện Tích

Toàn khu được thiết kế dựa trên triết lý “Nơi Mạch Sống Lưu Chuyển”, được thể hiện qua 3 dòng chảy xuyên suốt:
- Dòng Khí (Luồng không khí): Các dãy nhà được bố trí hợp lý, tạo ra các hành lang hút gió tự nhiên. Không gian sân trong, vườn thiền, lối đi lát đá và các khoảng hở kiến trúc giúp không khí trong lành và ánh sáng mặt trời có thể len lỏi đến từng ngóc ngách, giúp điều hòa vi khí hậu toàn khu.
- Dòng Năng Lượng (Luồng giao thông và sinh hoạt): Hệ thống đường nội bộ rộng rãi (từ 7m đến 16m) kết nối liên hoàn, không có ngõ cụt, tạo sự thuận tiện và an toàn khi di chuyển. Các cụm tiện ích được đặt ở những “điểm dừng” hợp lý, tạo ra một nhịp sống năng động và liền mạch, khuyến khích cư dân ra ngoài vận động và tương tác.

- Dòng Kết Nối (Luồng tương tác xã hội): Thiết kế của SEI HARMONY đặc biệt chú trọng đến việc tạo ra không gian cho nhiều thế hệ. Sân chơi cho trẻ em, vườn dạo cho ông bà, khu BBQ cho cả gia đình… Tất cả tạo nên một khu phố mà ở đó, “tình làng nghĩa xóm” được khơi gợi, con người và nhà cửa không tách rời mà cùng nhau thở chung một nhịp sống an hòa, gắn kết.
Thiết kế nhà phố thông minh – Tối ưu không gian, đa dạng công năng
Sự thấu hiểu nhu cầu của gia đình Việt được thể hiện rõ nét nhất qua thiết kế của từng căn nhà phố SEI HARMONY. Chủ đầu tư đã đưa ra tới 24 mẫu nhà khác nhau, một con số ấn tượng, cho thấy sự đầu tư nghiêm túc vào việc nghiên cứu để tạo ra những không gian sống thực sự phù hợp với từng nhịp sống riêng.

Kiến trúc của mỗi căn nhà là sự giao thoa tinh tế giữa “Thẩm mỹ Nhật – Công năng Việt”, với những ưu điểm vượt trội:









- Không gian sống “thở”: Nhờ các giải pháp kiến trúc thông minh như bố trí khoảng thông tầng, sân trong và giếng trời, mỗi căn nhà đều có khả năng đối lưu không khí tự nhiên. Điều này không chỉ giúp nhà luôn mát mẻ, thông thoáng mà còn tiết kiệm đáng kể chi phí điện cho máy lạnh, đồng thời tốt cho sức khỏe của cả gia đình. Thiết kế lệch tầng cũng là một điểm nhấn độc đáo, vừa tối ưu giao thông theo chiều đứng, vừa tạo ra những không gian chuyển tiếp đầy cảm xúc.
- Bàn giao linh hoạt, tôn trọng cá tính gia chủ: Việc bàn giao hoàn thiện mặt ngoài và thô bên trong là một quyết định rất được lòng khách hàng. Điều này cho phép mỗi gia chủ có thể tự do thiết kế, phân chia phòng ốc, lựa chọn vật liệu và phong cách nội thất theo đúng sở thích, nhu cầu và ngân sách của mình. Ô chờ thang máy cũng được để trống, sẵn sàng cho các gia đình đa thế hệ muốn lắp đặt để thuận tiện cho người lớn tuổi.
- Vật liệu bàn giao chất lượng: Mặt ngoài được hoàn thiện chỉn chu với các vật liệu bền đẹp như cửa nhôm Xingfa Việt Nam, kính cường lực, lan can hoa văn thép sơn tĩnh điện, gạch ốp mặt tiền… đảm bảo tính thẩm mỹ và sự bền vững của công trình theo thời gian.
Thiết Kế Nhà Phố Sei Harmony MR03-2 (56m2) | Phân Tích Mặt Bằng & Công Năng




Thiết Kế Nhà Phố Sei Harmony MR03-11 (52m²) | Giải Pháp Tối Ưu Cho Gia Đình Trẻ




Thiết Kế Nhà Phố Sei Harmony MR03-53 (68m²) | Mẫu Nhà Chuẩn Mực Cho Gia Đình




Mỗi căn nhà tại đây không chỉ là nơi để ở, mà còn là một tác phẩm kiến trúc, nơi dòng sinh khí trong nhà luôn được luân chuyển, mang lại sức khỏe, tài lộc và sự bình an cho gia chủ, đúng theo triết lý phong thủy Á Đông và tinh thần Zen của Nhật.
Hotline Mua Bán + Cho Thuê + Ký Gửi SEI Harmony: 0933.098.890
NHÀ MẪU SEI HARMONY: TRẢI NGHIỆM THỰC TẾ THIẾT KẾ & KHÔNG GIAN SỐNG ĐA THẾ HỆ
Khu **nhà mẫu SEI HARMONY** đã chính thức mở cửa đón khách tham quan, mang đến cơ hội trải nghiệm chân thực nhất về không gian sống và chất lượng của dự án nhà phố compound từ chủ đầu tư Tokyo AA. Với vai trò là chuyên viên tư vấn đồng hành cùng dự án, tôi là Nguyễn Lộc Nghĩa, hiểu rằng việc trực tiếp khám phá **nhà mẫu SEI HARMONY** là bước quan trọng giúp anh chị kiểm chứng mọi thông tin và đưa ra quyết định một cách tự tin. Đây không chỉ là một căn nhà trưng bày, mà là nơi thể hiện trọn vẹn triết lý thiết kế, cam kết chất lượng và tầm nhìn của toàn bộ dự án, một trải nghiệm không thể bỏ lỡ cho bất kỳ ai đang quan tâm đến việc mua bán nhà phố tại đây.


Khám phá thiết kế và mặt bằng thực tế tại nhà mẫu SEI HARMONY
Khi tham quan **nhà mẫu SEI HARMONY**, anh chị sẽ thấy rõ mặt bằng được bố trí thông minh như thế nào để tối ưu hóa không gian cho gia đình đa thế hệ. Toàn bộ thiết kế nội thất trong căn nhà mẫu đều xoay quanh tinh thần Zen Nhật Bản: sử dụng vật liệu gỗ ấm cúng, màu sắc trung tính và đường nét tối giản, tạo nên một không gian sống vừa sang trọng, vừa thư thái. Điểm nhấn đặc biệt của **nhà mẫu SEI HARMONY** là việc ứng dụng không gian thông tầng và giếng trời, giúp cho căn nhà luôn tràn ngập ánh sáng tự nhiên và gió trời, mang lại cảm giác rộng rãi và tiết kiệm năng lượng. Việc bài trí các khu vực chức năng liền mạch nhưng vẫn đảm bảo sự riêng tư cần thiết là một gợi ý quý giá, giúp anh chị dễ dàng hình dung việc sắp đặt tổ ấm của chính mình sau khi nhận bàn giao thô.













Cảm nhận chất lượng vật liệu bàn giao khi xem nhà mẫu
Trải nghiệm tại **nhà mẫu SEI HARMONY** không chỉ dừng lại ở thiết kế. Đây là nơi anh chị có thể kiểm chứng chất lượng bàn giao thực tế mà chủ đầu tư Tokyo AA cam kết. Tại khu vực trưng bày vật liệu của nhà mẫu, anh chị được tận tay cảm nhận sự cao cấp của cửa nhôm Xingfa, độ dày của kính cường lực, và sự tinh xảo của lan can thép sơn tĩnh điện. Việc được “mắt thấy tay chạm” các vật liệu hoàn thiện mặt ngoài giúp anh chị có một niềm tin vững chắc vào chất lượng xây dựng của toàn bộ dự án. Do đó, việc dành thời gian đến xem **nhà mẫu SEI HARMONY** không chỉ giúp anh chị có thêm cảm hứng thiết kế mà còn là bước kiểm định quan trọng về giá trị và sự bền vững của tài sản mà mình dự định sở hữu.
Hotline Mua Bán + Cho Thuê + Ký Gửi The 825 SEI Harmony: 0933.098.890
HỆ THỐNG TIỆN ÍCH ĐẬM CHẤT NHẬT BẢN – NƠI MỖI NGÀY LÀ MỘT KỲ NGHỈ
Khám phá chi tiết chuỗi 29+ tiện ích nội khu đẳng cấp
Khi nói về tiện ích của SEI HARMONY, chúng ta không chỉ nói về số lượng, mà còn là chất lượng và chiều sâu văn hóa. Chủ đầu tư Tokyo AA đã kiến tạo nên một resort thu nhỏ, nơi mỗi tiện ích đều mang một câu chuyện và phục vụ một mục đích sống riêng, đáp ứng trọn vẹn nhu cầu của cả 3 thế hệ.
Hãy cùng Nguyễn Lộc Nghĩa dạo một vòng khám phá những tiện ích đặc sắc nhất:
- Vườn Thiền Tịnh Roji và Giếng nước Tsukubai: Đây là không gian dành cho những tâm hồn cần sự tĩnh lặng. Hãy tưởng tượng mỗi sớm mai, ông bà có thể đi dạo trên con đường sỏi Nhật, lắng nghe tiếng nước chảy thanh tẩy tâm hồn từ giếng Tsukubai, ngắm nhìn những cây bonsai được cắt tỉa công phu. Đó là một liệu pháp chữa lành tự nhiên, giúp người lớn tuổi tìm thấy sự thư thái, an nhiên.

- Khu Vui Chơi Sasuke và Tường Leo Núi: Một thiên đường vận động dành cho các cư dân nhí. Thay vì dán mắt vào các thiết bị điện tử, trẻ em sẽ được thỏa sức chinh phục các thử thách như trong gameshow nổi tiếng của Nhật, rèn luyện cả thể chất lẫn ý chí. Sân trượt patin và đường đua scooter cũng là nơi để các em giải phóng năng lượng một cách an toàn.

- Đồi Cỏ Hồng và Vườn Hoa Anh Đào: Đây là những điểm nhấn cảnh quan tuyệt đẹp, mang tính biểu tượng của dự án. Đồi cỏ hồng lãng mạn hay con đường rợp bóng hoa anh đào sẽ là nơi check-in lý tưởng, nơi cả gia đình lưu giữ những khoảnh khắc hạnh phúc bên nhau.

- Khu Thể Thao Ngoài Trời và BBQ Garden: Nơi dành cho thế hệ cha mẹ năng động. Sau một ngày làm việc, bạn có thể rèn luyện sức khỏe với các thiết bị thể thao hiện đại. Vào cuối tuần, khu vườn BBQ là địa điểm hoàn hảo để tổ chức những bữa tiệc ấm cúng, gắn kết tình thân và giao lưu hàng xóm.







- Cầu Gỗ Kintai Kyo và Thanh Trúc Viên: Những công trình mang đậm dấu ấn kiến trúc Nhật Bản, tạo nên những góc không gian thơ mộng, yên bình để dạo bộ, thư giãn và tận hưởng không khí trong lành.
Ngoài ra còn rất nhiều tiện ích độc đáo khác như Lầu thưởng trà, tường cá chép Koinobori, tường gốm Yakimono, Vườn cờ…. Tất cả được bố trí hài hòa, tạo nên một tổng thể tiện ích đủ đầy, nơi mỗi thành viên trong gia đình đều tìm thấy không gian yêu thích của riêng mình.
Hotline Mua Bán + Cho Thuê + Ký Gửi SEI Harmony: 0933.098.890
Error: Contact form not found.
Pháp Lý SEI HARMONY Bình Tân | Sổ Hồng Riêng Từng Căn Từ CĐT Tokyo AA[/caption]
Việc sở hữu sổ hồng riêng mang lại những lợi ích không thể phủ nhận:
- Khẳng định quyền sở hữu tuyệt đối: Anh chị là chủ nhân duy nhất và hợp pháp của tài sản, được pháp luật Việt Nam công nhận và bảo vệ.
- Thanh khoản cao: Việc mua bán, chuyển nhượng, cho tặng hay để lại thừa kế trong tương lai sẽ vô cùng đơn giản, nhanh chóng và được giá.
- Dễ dàng tiếp cận vốn ngân hàng: Sổ hồng là tài sản đảm bảo giá trị nhất, giúp anh chị dễ dàng vay vốn ngân hàng để phục vụ các kế hoạch kinh doanh hay tiêu dùng khác.
- Tài sản tích lũy bền vững: Một bất động sản pháp lý sạch luôn có giá trị nội tại và tiềm năng tăng giá vượt trội so với các sản phẩm khác trên thị trường.
Quá trình từ một khu đất lớn, được chủ đầu tư tuân thủ pháp luật để đầu tư hạ tầng, tách thửa và ra sổ cho từng sản phẩm là một nỗ lực phi thường, cho thấy năng lực tài chính vững mạnh và sự uy tín của chủ đầu tư Tokyo AA.
Hệ thống văn bản pháp lý đầy đủ, thể hiện sự chuẩn chỉnh trong từng bước đi
Để có được Sổ hồng riêng cho từng căn, chủ đầu tư đã phải hoàn thiện một bộ hồ sơ pháp lý đồ sộ và chuẩn chỉnh. Dưới đây là những văn bản quan trọng mà Nghĩa đã xác thực, cho thấy sự minh bạch tuyệt đối của dự án:
- Công văn số 248/UBND ngày 21/01/2020: Chấp thuận phương án đầu tư hạ tầng kỹ thuật để tách thửa hình thành đường giao thông. Đây là văn bản pháp lý khởi đầu, đặt nền móng cho việc phát triển dự án đúng quy hoạch.


- Giấy phép thi công: Cho phép các hoạt động xây dựng hạ tầng và nhà ở diễn ra hợp pháp.


- Văn bản số 74/VP-TMTH ngày 20/01/2022 của UBND quận Bình Tân: Đây là một văn bản cực kỳ giá trị! Nó xác nhận việc tiếp nhận quản lý công trình hạ tầng kỹ thuật (đường giao thông, cây xanh, văn phòng khu phố) và giao cho UBND phường An Lạc quản lý. Điều này có nghĩa là hạ tầng của khu dân cư đã được “nhà nước hóa”, đảm bảo sẽ được duy tu, bảo dưỡng bởi chính quyền địa phương, mang lại sự an tâm lâu dài cho cư dân.
- Quyết định thu hồi đất và giao đất cho phường quản lý (Số 594/QĐ-UBND và 2125/QĐ-UBND): Các quyết định này xác nhận phần đất làm đường, công viên đã được chuyển thành đất công cộng, đảm bảo không gian chung của cư dân không bị xâm phạm.
- Chứng nhận số nhà: Các căn nhà tại dự án đã được cấp số nhà chính thức, ví dụ như căn tại thửa 491 mang số 231/22 đường Lê Tấn Bê, thuận tiện cho mọi giao dịch hành chính.
Với một bộ pháp lý “dày” và vững chắc như vậy, anh chị có thể thấy SEI HARMONY không chỉ là một sản phẩm tốt về thiết kế, vị trí, tiện ích mà còn là một tài sản an toàn tuyệt đối. Đây là điều mà không phải dự án nào cũng làm được.
Hotline Mua Bán + Cho Thuê + Ký Gửi SEI Harmony: 0933.098.890
GIÁ BÁN SEI HARMONY VÀ CHÍNH SÁCH THANH TOÁN HẤP DẪN NHẤT
Cập nhật bảng giá SEI HARMONY – Mức giá tốt cho một tài sản vô giá
Và đây là phần được mong chờ nhất, giá bán SEI HARMONY. Theo thông tin mới nhất mà Nghĩa nhận được từ chủ đầu tư, dự án đang có mức giá khởi điểm vô cùng hấp dẫn, chỉ từ 6.8 tỷ đồng/căn (đã bao gồm thuế & phí).
Là một người am hiểu thị trường, Nguyễn Lộc Nghĩa xin đưa ra một vài phân tích để anh chị thấy rõ sự hợp lý của mức giá này:
- So với đất nền trong khu vực: Các lô đất nền riêng lẻ trong các hẻm nhỏ tại phường An Lạc, chưa có hạ tầng đồng bộ, an ninh không đảm bảo, cũng đã có mức giá không hề thấp. SEI HARMONY mang đến một sản phẩm nhà phố xây sẵn trong khu compound an ninh, hạ tầng hoàn chỉnh, tiện ích đủ đầy, với mức giá chỉ nhỉnh hơn một chút.
- So với căn hộ cao cấp: Một căn hộ cao cấp 3 phòng ngủ tại khu vực trung tâm cũng có thể có giá tương đương, nhưng đó là tài sản trên không, sở hữu có thời hạn và chịu phí quản lý cao. Trong khi đó, SEI HARMONY là nhà liền thổ, sở hữu lâu dài, là “tấc đất tấc vàng”, giá trị chỉ có tăng theo thời gian.
- So với các dự án nhà phố khác: Rất nhiều dự án nhà phố khác trên thị trường vẫn đang vướng mắc pháp lý, chưa có sổ. Mức giá của SEI HARMONY đã bao gồm cả “giá trị của sự an tâm” – một tài sản có pháp lý hoàn chỉnh.
Rõ ràng, đây là một mức giá quá tốt cho một sản phẩm khan hiếm, pháp lý vững chắc và sở hữu nhiều tiềm năng vượt trội. Để nhận được bảng giá SEI HARMONY chi tiết nhất, bao gồm giá của từng căn, từng vị trí và các chương trình ưu đãi độc quyền, anh chị hãy gọi ngay cho Nghĩa nhé.
Chính sách bán hàng và phương thức thanh toán linh hoạt
Để hỗ trợ khách hàng dễ dàng sở hữu tổ ấm trong mơ, chủ đầu tư Tokyo AA đang áp dụng những chính sách cực kỳ ưu đãi:
- Chiết khấu hấp dẫn: Khách hàng booking sớm và giao dịch thành công sẽ nhận ngay chiết khấu lên đến 3% trên giá bán.
- Ưu đãi ngày mở bán: Luôn có những chính sách quà tặng và chiết khấu thêm đặc biệt dành cho những khách hàng quyết định trong sự kiện mở bán.

Về phương thức thanh toán, chủ đầu tư mang đến 2 lựa chọn linh hoạt để phù hợp với dòng tiền của từng gia đình:
- Phương thức thanh toán chuẩn:
- Khách hàng sẽ thanh toán theo từng đợt, dàn trải trong một thời gian dài, giúp giảm áp lực tài chính.
- Một điểm đặc biệt ưu việt là khách hàng chỉ cần thanh toán 75% giá trị hợp đồng là đã được nhận nhà để hoàn thiện nội thất và dọn vào ở. 25% còn lại sẽ được thanh toán sau đó, khi làm thủ tục hoàn công và nhận giấy chứng nhận. Đây là chính sách “nhận nhà trước, trả tiền sau” rất có lợi cho người mua.

- Phương thức thanh toán vay ngân hàng:
- Đây là giải pháp tuyệt vời cho những ai muốn sử dụng đòn bẩy tài chính. Khách hàng chỉ cần chuẩn bị vốn tự có 40%.
- Ngân hàng đối tác sẽ hỗ trợ giải ngân 60% còn lại. Nghĩa và đội ngũ sẽ hỗ trợ anh chị hoàn thiện mọi thủ tục vay vốn một cách nhanh chóng và thuận tiện nhất.

Với số lượng hữu hạn chỉ 132 căn, pháp lý sổ hồng riêng cầm tay và những chính sách bán hàng hấp dẫn, Nghĩa tin rằng SEI HARMONY sẽ không còn trên thị trường trong thời gian dài. Cơ hội sở hữu một tài sản thật, giá trị thật đang ở ngay trước mắt.

Cảm ơn quý anh chị đã dành thời gian theo dõi những phân tích chi tiết và tâm huyết của Nguyễn Lộc Nghĩa. Với vai trò là người bạn đồng hành, tôi luôn sẵn sàng lắng nghe, giải đáp mọi thắc mắc và hỗ trợ anh chị trong toàn bộ quá trình, từ việc tìm hiểu thông tin, tham quan thực tế, kiểm tra pháp lý cho đến khi anh chị nhận được chìa khóa ngôi nhà hạnh phúc của mình. Đừng ngần ngại, hãy nhấc máy và gọi cho Nghĩa ngay hôm nay!
Hotline Mua Bán + Cho Thuê + Ký Gửi SEI Harmony: 0933.098.890
SEI HARMONY PHÙ HỢP VỚI NHỮNG AI? GÓC NHÌN TỪ NGUYỄN LỘC NGHĨA
Thưa anh chị, trong suốt quá trình tư vấn, một câu hỏi mà Nguyễn Lộc Nghĩa thường xuyên nhận được là: “Vậy dự án này có thực sự phù hợp với gia đình tôi không?”. Đây là một câu hỏi rất chính đáng. Một ngôi nhà lý tưởng không chỉ đẹp, mà còn phải “vừa vặn” với lối sống, nhu cầu và định hướng tương lai của chủ nhân. Dựa trên những đặc điểm độc đáo của dự án, tôi nhận thấy dự án SEI HARMONY đặc biệt tỏa sáng và trở thành lựa chọn hoàn hảo cho 3 nhóm khách hàng sau:

1. Các gia đình đa thế hệ tìm kiếm không gian sống gắn kết, an nhiên
Đây chính là đối tượng khách hàng mà chủ đầu tư Tokyo AA đã đặt làm trọng tâm khi kiến tạo nên dự án. SEI HARMONY không chỉ giải quyết bài toán “sống chung” mà còn nâng tầm thành “sống vui, sống khỏe, sống hạnh phúc” cùng nhau.
- Không gian cho sự gắn kết: Thiết kế tầng trệt với phòng khách và bếp liên thông tạo ra một không gian sinh hoạt chung rộng lớn, nơi cả gia đình có thể quây quần mỗi tối, cùng nhau nấu ăn, xem phim và chia sẻ những câu chuyện trong ngày. Khu vườn BBQ và nhà cộng đồng trong nội khu cũng là nơi lý tưởng để tổ chức các buổi họp mặt gia đình vào cuối tuần.

- Không gian cho sự riêng tư: Các tầng trên được bố trí phòng ngủ riêng biệt, có ban công hoặc khoảng lùi, tạo ra những góc riêng tư cần thiết cho mỗi thành viên. Ông bà có không gian yên tĩnh để đọc sách, nghỉ ngơi. Cha mẹ có nơi làm việc tập trung. Con cái có góc học tập của riêng mình. Sự cân bằng giữa “chung” và “riêng” này giúp duy trì sự hòa hợp lâu dài.

- An toàn tuyệt đối cho người già và trẻ nhỏ: Nằm trong khu compound khép kín với an ninh 24/7 , cha mẹ có thể hoàn toàn yên tâm khi con trẻ vui chơi tại các khu tiện ích nội khu như sân trượt patin, khu vui chơi Sasuke. Người lớn tuổi cũng có thể an toàn dạo bộ mỗi chiều trong một môi trường trong lành, không lo ngại về xe cộ.
- Tiện ích cho mọi lứa tuổi: Như đã phân tích, hệ thống 29+ tiện ích được thiết kế để phục vụ từ ông bà, cha mẹ đến các cháu nhỏ. Điều này đảm bảo mỗi thành viên đều có hoạt động yêu thích, giúp nâng cao sức khỏe thể chất và tinh thần cho cả gia đình.
Nếu anh chị đang tìm kiếm một tổ ấm đúng nghĩa, nơi ông bà có thể an hưởng tuổi già, cha mẹ có không gian phát triển sự nghiệp và con cái được lớn lên trong một môi trường an toàn, văn minh, thì SEI HARMONY chính là câu trả lời.
2. Các nhà đầu tư thông thái tìm kiếm tài sản an toàn và sinh lời bền vững
Trong bối cảnh thị trường có nhiều kênh đầu tư tiềm ẩn rủi ro, bất động sản liền thổ có pháp lý hoàn chỉnh luôn là “hầm trú ẩn” an toàn và là kênh tích lũy tài sản hiệu quả nhất. SEI HARMONY hội tụ đầy đủ các yếu tố vàng để trở thành một sản phẩm đầu tư không thể bỏ lỡ:
- Pháp lý là Vua: Yếu tố sổ hồng riêng từng căn là “kim bài miễn tử” cho mọi rủi ro. Tài sản của anh chị được pháp luật bảo hộ, có tính thanh khoản cực cao, dễ dàng mua bán hoặc thế chấp khi cần. Đây là ưu thế tuyệt đối so với các dự án chỉ có hợp đồng góp vốn.
- Sự khan hiếm tạo nên giá trị: Với số lượng giới hạn chỉ 132 căn, SEI HARMONY là “hàng hiếm”. Theo quy luật cung cầu, những gì khan hiếm và có giá trị thực sẽ luôn tăng giá theo thời gian, đặc biệt là trong bối cảnh quỹ đất sạch tại TP.HCM ngày càng cạn kiệt.
- Đón sóng hạ tầng tỷ đô: Vị trí dự án hưởng lợi trực tiếp từ tuyến Metro 3A và dự án cải tạo kênh Tham Lương. Đây là những động lực tăng trưởng hữu hình, chắc chắn sẽ đẩy giá trị bất động sản khu vực lên một tầm cao mới trong 3-5 năm tới. Đầu tư từ bây giờ là mua tài sản với giá của hiện tại nhưng tiềm năng của tương lai.
- Tiềm năng khai thác cho thuê hấp dẫn: Vị trí gần các khu công nghiệp lớn như Tân Tạo, Lê Minh Xuân tạo ra nhu cầu thuê nhà ở rất lớn từ các chuyên gia, kỹ sư trong và ngoài nước. Với thiết kế đẹp, an ninh và tiện ích đầy đủ, một căn nhà phố SEI HARMONY có thể dễ dàng cho thuê với giá tốt, tạo ra dòng tiền ổn định hàng tháng cho nhà đầu tư.
Với các nhà đầu tư có tầm nhìn dài hạn, không thích “lướt sóng” đầy rủi ro mà muốn một tài sản chắc chắn, vừa có thể tạo ra dòng tiền, vừa có tiềm năng tăng giá vốn vượt trội, thì việc đưa SEI HARMONY vào danh mục đầu tư là một quyết định vô cùng sáng suốt.
3. Những người thành đạt, chuyên gia yêu thích lối sống chuẩn Nhật
SEI HARMONY không chỉ là một ngôi nhà, mà còn là một tuyên ngôn về phong cách sống. Dự án này sẽ đặc biệt thu hút những người thành đạt, các chuyên gia, quản lý cấp cao, những người đã đi nhiều, trải nghiệm nhiều và giờ đây tìm kiếm một không gian sống thực sự chất lượng, tinh tế và riêng tư.
- Chất sống “Zen”: Lối sống tối giản, cân bằng và hòa hợp với thiên nhiên của Nhật Bản đang là xu hướng toàn cầu. SEI HARMONY mang đến một không gian giúp chủ nhân rũ bỏ những mệt mỏi, áp lực của công việc, tìm về sự tĩnh tại và tái tạo năng lượng mỗi khi trở về nhà.
- Cộng đồng văn minh, tương đồng: Với mức giá và định vị sản phẩm, dự án chắc chắn sẽ thu hút một cộng đồng cư dân có cùng trình độ văn hóa, mức sống và tư duy. Việc sống trong một cộng đồng tương đồng sẽ tạo ra môi trường phát triển tốt cho con cái và những mối quan hệ xã hội chất lượng cho cha mẹ.
- Thiết kế tinh tế, không phô trương: Kiến trúc của SEI HARMONY không hào nhoáng, cầu kỳ mà tập trung vào sự tinh xảo trong đường nét, sự hài hòa của vật liệu và sự tối ưu trong công năng. Điều này phù hợp với gu thẩm mỹ của những người thành công, những người không cần dùng vẻ bề ngoài để khẳng định giá trị bản thân.
Tóm lại, nếu anh chị thuộc một trong ba nhóm trên, Nghĩa tin rằng việc tìm hiểu sâu hơn và đến tham quan thực tế dự án SEI HARMONY sẽ không làm anh chị thất vọng.
Hotline Mua Bán + Cho Thuê + Ký Gửi SEI Harmony: 0933.098.890
QUY TRÌNH MUA BÁN VÀ NHỮNG LƯU Ý QUAN TRỌNG KHI SỞ HỮU NHÀ PHỐ SEI HARMONY
Để giúp anh chị có một hành trình mua nhà thuận lợi, an tâm và minh bạch, Nguyễn Lộc Nghĩa xin được chia sẻ quy trình chuẩn khi giao dịch một sản phẩm tại SEI HARMONY, cũng như những kinh nghiệm quý báu mà tôi đã đúc kết được.
Bước 1: Liên hệ tư vấn chuyên sâu và tham quan thực tế dự án
Đây là bước đầu tiên và quan trọng nhất. Anh chị hãy liên hệ với một người tư vấn am hiểu sâu sắc về dự án như Nghĩa. Tôi sẽ không chỉ gửi cho anh chị những thông tin chung chung, mà sẽ:
- Lắng nghe nhu cầu, tài chính và mong muốn của gia đình anh chị để tư vấn những căn phù hợp nhất.
- Cung cấp bộ tài liệu đầy đủ, bao gồm mặt bằng chi tiết, chính sách bán hàng mới nhất và đặc biệt là file scan các văn bản pháp lý.
- Sắp xếp một buổi tham quan thực tế tại dự án. Tại đây, anh chị sẽ được tận mắt thấy vị trí, cảm nhận không khí, xem xét tiến độ xây dựng và hình dung rõ hơn về ngôi nhà tương lai của mình.
Bước 2: Kiểm tra hồ sơ pháp lý và lựa chọn căn ưng ý
Sau khi đã có cảm tình với dự án, đây là lúc chúng ta đi vào chi tiết. Với sự hỗ trợ của Nghĩa, anh chị sẽ được xem toàn bộ hồ sơ pháp lý gốc của dự án. Tôi sẽ giải thích cặn kẽ ý nghĩa của từng loại văn bản để anh chị hoàn toàn yên tâm.
Tiếp theo là việc lựa chọn “tổ ấm” của mình. Nghĩa sẽ giúp anh chị phân tích ưu, nhược điểm của các căn còn lại dựa trên các yếu tố:
- Hướng nhà: Lựa chọn hướng hợp với tuổi và mệnh của gia chủ theo phong thủy.
- Vị trí: Căn góc, căn gần công viên, căn gần cổng ra vào… mỗi vị trí sẽ có một đặc điểm riêng.
- Diện tích và thiết kế: Lựa chọn mẫu nhà có công năng phù hợp nhất với số lượng thành viên và thói quen sinh hoạt của gia đình.
- Ngân sách: Cân đối để chọn căn có mức giá phù hợp nhất với kế hoạch tài chính.
Bước 3: Quy trình Đặt cọc và Ký Hợp đồng Mua bán (HĐMB)
Khi đã chọn được căn nhà mơ ước, chúng ta sẽ tiến hành các thủ tục tài chính:
- Thỏa thuận Đặt cọc: Anh chị sẽ ký thỏa thuận đặt cọc và thanh toán một khoản tiền để “giữ chỗ” chính thức cho căn nhà của mình. Số tiền này sẽ được trừ vào giá trị hợp đồng sau đó.
- Ký Hợp đồng Mua bán: Trong vòng 7-10 ngày sau khi đặt cọc, anh chị sẽ ký HĐMB trực tiếp với chủ đầu tư. Nghĩa sẽ đồng hành cùng anh chị, đọc và giải thích kỹ từng điều khoản trong hợp đồng để đảm bảo quyền lợi của anh chị là cao nhất.
- Thanh toán đợt 1: Anh chị sẽ tiến hành thanh toán đợt 1 theo quy định trong HĐMB.
Bước 4: Hoàn thiện nội thất và nhận bàn giao nhà
Vì dự án bàn giao thô bên trong, đây là giai đoạn thú vị để anh chị kiến tạo không gian sống theo cá tính riêng. Một vài lưu ý ở giai đoạn này:
- Lên kế hoạch thiết kế và ngân sách: Anh chị nên làm việc với một đơn vị thiết kế nội thất uy tín để có bản vẽ chi tiết, giúp tối ưu công năng và tránh phát sinh chi phí.
- Giám sát thi công: Quá trình hoàn thiện nội thất cần được giám sát chặt chẽ để đảm bảo chất lượng và tiến độ.
- Thủ tục nhận bàn giao: Khi đến ngày nhận nhà, Nghĩa sẽ cùng anh chị kiểm tra kỹ lưỡng từng hạng mục theo danh mục vật liệu bàn giao của chủ đầu tư, đảm bảo mọi thứ đều hoàn hảo trước khi ký vào biên bản nhận bàn giao.
Bước 5: Thủ tục hoàn công và nhận Giấy chứng nhận (Sổ hồng)
Đây là bước cuối cùng để hoàn tất trọn vẹn quyền sở hữu. Sau khi anh chị hoàn thiện nội thất, chủ đầu tư sẽ hỗ trợ thực hiện các thủ tục hoàn công (xác nhận công trình đã xây dựng đúng theo giấy phép). Cuối cùng, chủ đầu tư sẽ thay mặt anh chị nộp hồ sơ lên cơ quan nhà nước có thẩm quyền để ra sổ hồng mang tên chính chủ.
Hành trình sở hữu một ngôi nhà là một hành trình dài nhưng sẽ vô cùng xứng đáng. Với sự đồng hành của một người tư vấn tận tâm và am hiểu như Nguyễn Lộc Nghĩa, tôi tin rằng hành trình của anh chị tại SEI HARMONY sẽ thật suôn sẻ, an toàn và tràn đầy niềm vui.
Hotline Mua Bán + Cho Thuê + Ký Gửi SEI Harmony: 0933.098.890
TIẾN ĐỘ XÂY DỰNG SEI HARMONY BÌNH TÂN
Cập Nhật Tiến Độ Xây Dựng SEI Harmony Bình Tân 06/2025





Hotline Mua Bán + Cho Thuê + Ký Gửi SEI Harmony: 0933.098.890
VỀ CHỦ ĐẦU TƯ TOKYO AA – BẢO CHỨNG UY TÍN VÀ CHẤT LƯỢNG NHẬT BẢN
Thưa anh chị, khi mua một sản phẩm bất động sản hình thành trong tương lai, một trong những yếu tố quan trọng nhất chính là uy tín và năng lực của chủ đầu tư. Một chủ đầu tư có tâm và có tầm sẽ đảm bảo dự án được triển khai đúng tiến độ, chất lượng xây dựng được cam kết và quan trọng nhất là pháp lý được ra đúng hẹn. Với SEI HARMONY, chúng ta có Chủ đầu tư là Công ty Cổ phần Tokyo AA, một cái tên tuy không quảng bá rầm rộ nhưng lại thể hiện năng lực qua chính sản phẩm của mình.
Với kinh nghiệm làm việc và là đối tác đồng hành, Nguyễn Lộc Nghĩa xin chia sẻ những đánh giá khách quan về Tokyo AA qua những gì họ đã làm tại dự án này:
- Tầm nhìn và triết lý kinh doanh khác biệt: Thay vì chạy theo xu hướng thị trường, xây dựng ồ ạt, Tokyo AA chọn cho mình một lối đi riêng. Họ không chỉ bán những ngôi nhà, họ kiến tạo một không gian sống có chiều sâu văn hóa, mang đậm triết lý Zen và tinh thần Nhật Bản. Việc đặt tên dự án là SEI HARMONY, xây dựng câu chuyện 3 thế hệ Sora-Shin-Mirai cho thấy một tầm nhìn xa, hướng đến việc tạo ra các giá trị bền vững cho cộng đồng chứ không chỉ đơn thuần là lợi nhuận.
- Cam kết pháp lý là trên hết: Đây là điểm sáng nhất và là minh chứng rõ ràng nhất cho uy tín của Tokyo AA. Việc một dự án nhà phố compound có thể ra được sổ hồng riêng cho từng căn ở thời điểm hiện tại là một kỳ tích, đòi hỏi chủ đầu tư phải có tiềm lực tài chính cực kỳ vững mạnh và phải thực hiện mọi thủ tục một cách chuẩn chỉnh, minh bạch với các cơ quan nhà nước. Họ đã làm được điều mà rất nhiều chủ đầu tư lớn khác còn đang loay hoay.
- Chú trọng chất lượng và trải nghiệm người dùng: Từ việc quy hoạch 29+ tiện ích nội khu cho đến việc đưa ra 24 mẫu nhà khác nhau để đáp ứng đa dạng nhu cầu, có thể thấy Tokyo AA rất chú trọng đến trải nghiệm của cư dân tương lai. Họ không làm sản phẩm một cách đại trà, mà chăm chút trong từng chi tiết thiết kế, từ cảnh quan chung cho đến công năng trong từng ngôi nhà.
- Năng lực triển khai đã được chứng minh: Toàn bộ hạ tầng kỹ thuật của dự án đã được thi công hoàn chỉnh và được nghiệm thu, bàn giao cho chính quyền địa phương quản lý theo văn bản số 74/VP-TMTH. Điều này cho thấy Tokyo AA là một đơn vị nói được, làm được, hoàn thành trọn vẹn trách nhiệm của mình với khách hàng và với xã hội.
Chọn mua sản phẩm của một chủ đầu tư như Tokyo AA, anh chị có thể hoàn toàn yên tâm rằng mình đang đặt niềm tin và tài sản vào đúng nơi, một doanh nghiệp làm ăn bài bản, lấy uy tín và chất lượng làm nền tảng.
Hotline Mua Bán + Cho Thuê + Ký Gửi SEI Harmony: 0933.098.890
GIẢI ĐÁP CÁC CÂU HỎI THƯỜNG GẶP (FAQ) VỀ DỰ ÁN SEI HARMONY
Dưới đây, Nguyễn Lộc Nghĩa đã tổng hợp và xin được giải đáp một số câu hỏi phổ biến nhất mà các khách hàng thường đặt ra trong quá trình tìm hiểu dự án. Hy vọng phần giải đáp này sẽ giúp anh chị tháo gỡ được những băn khoăn cuối cùng.
1. Phí quản lý tại SEI HARMONY dự kiến là bao nhiêu và bao gồm những dịch vụ gì?
Đây là một câu hỏi rất thực tế. Vì là khu compound khép kín với nhiều tiện ích và dịch vụ an ninh, việc có phí quản lý là cần thiết để duy trì chất lượng sống. Mức phí quản lý dự kiến sẽ rất hợp lý so với các khu dân cư cao cấp khác. Mức phí này sẽ được dùng để chi trả cho các dịch vụ thiết yếu, bao gồm:
- An ninh 24/7: Chi phí cho đội ngũ bảo vệ chuyên nghiệp tuần tra, giám sát camera, kiểm soát người và phương tiện ra vào cổng, đảm bảo an toàn tuyệt đối cho cư dân.
- Vệ sinh khu vực chung: Giữ gìn vệ sinh đường nội bộ, các khu vực công cộng luôn sạch sẽ.
- Chăm sóc cảnh quan: Chăm sóc cây xanh, vườn hoa, các tiện ích cảnh quan như Vườn Thiền, Đồi Cỏ Hồng… để đảm bảo không gian sống luôn xanh mát, đẹp đẽ.
- Bảo trì hệ thống chung: Bảo trì hệ thống đèn chiếu sáng công cộng, hệ thống thoát nước, các thiết bị tại khu vui chơi, khu thể thao…
- Vận hành các tiện ích: Chi phí vận hành nhà cộng đồng và các tiện ích khác.
Mức phí cụ thể sẽ được Ban Quản lý công bố khi dự án đi vào vận hành, nhưng chắc chắn sẽ được tính toán hợp lý để đảm bảo quyền lợi cho cư dân.
2. Cư dân có được phép sửa đổi thiết kế mặt ngoài của căn nhà không?
Câu trả lời là không. Để đảm bảo tính đồng bộ, thẩm mỹ và giá trị chung cho toàn khu đô thị, chủ đầu tư quy định cư dân không được tự ý thay đổi thiết kế, màu sơn hay kết cấu mặt ngoài của căn nhà. Điều này có vẻ là một sự ràng buộc, nhưng thực tế lại là một điều rất tốt. Nó giúp cho SEI HARMONY luôn giữ được vẻ đẹp kiến trúc sang trọng, hài hòa theo đúng thiết kế ban đầu, tránh tình trạng “mỗi nhà một kiểu” làm mất đi giá trị của cả khu dân cư. Việc giữ gìn vẻ đẹp chung sẽ góp phần làm tăng giá trị tài sản của chính mỗi chủ sở hữu trong tương lai.
3. Tiến độ xây dựng hiện tại của dự án như thế nào và khi nào có thể nhận nhà?
Dựa trên các văn bản pháp lý được ban hành vào cuối năm 2024 và đầu năm 2025, có thể thấy hạ tầng kỹ thuật của dự án đã hoàn thiện 100% và đã được bàn giao cho nhà nước. Các căn nhà phố cũng đã được xây dựng và hoàn thiện phần mặt ngoài. Hiện tại, dự án đã sẵn sàng để bàn giao cho khách hàng. Anh chị có thể nhận nhà ngay sau khi hoàn tất các thủ tục ký Hợp đồng Mua bán và thanh toán theo tiến độ để tiến hành hoàn thiện nội thất và dọn vào ở. Để có thông tin và hình ảnh mới nhất, anh chị hãy liên hệ với Nghĩa để sắp xếp một chuyến tham quan thực tế nhé.
4. Ngân hàng nào hỗ trợ cho vay mua dự án SEI HARMONY?
Với pháp lý minh bạch và có sổ hồng riêng từng căn, dự án SEI HARMONY được rất nhiều ngân hàng lớn và uy tín thẩm định và sẵn sàng hỗ trợ cho vay. Một số ngân hàng hàng đầu tại Việt Nam chắc chắn sẽ có các gói vay ưu đãi cho khách hàng mua dự án. Để nhận được danh sách cụ thể các ngân hàng đối tác và chính sách lãi suất tốt nhất ở thời điểm hiện tại, anh chị vui lòng liên hệ trực tiếp với Nghĩa. Tôi sẽ kết nối anh chị với các chuyên viên tín dụng ngân hàng phù hợp nhất để được tư vấn gói vay tối ưu.
5. Sự khác biệt lớn nhất của SEI HARMONY so với các dự án nhà phố khác tại Bình Tân là gì?
Đây là một câu hỏi tổng kết rất hay. Theo đánh giá của Nguyễn Lộc Nghĩa, SEI HARMONY tạo ra sự khác biệt vượt trội nhờ 3 yếu tố cốt lõi:
- Pháp lý hoàn chỉnh tuyệt đối: Đây là sự khác biệt lớn nhất và đắt giá nhất. Việc sở hữu “Sổ hồng riêng từng căn” đặt SEI HARMONY ở một đẳng cấp khác biệt hoàn toàn so với phần còn lại của thị trường, mang lại sự an toàn tuyệt đối cho người mua.
- Không gian sống chuẩn compound Nhật Bản: Dự án không chỉ bán một ngôi nhà, mà bán cả một môi trường sống. Khu compound khép kín, an ninh với hệ thống 29+ tiện ích đậm chất Zen tạo ra một chất sống riêng, điều mà các dự án nhà phố đơn lẻ hay các khu dân cư mở không thể có được.
- Thiết kế thấu hiểu người dùng: Với 24 mẫu nhà đa dạng và kiến trúc thông minh tối ưu cho gia đình đa thế hệ, SEI HARMONY cho thấy sự đầu tư nghiêm túc vào việc nghiên cứu và đáp ứng nhu cầu ở thực của khách hàng, thay vì xây dựng theo một khuôn mẫu đại trà.
Hy vọng những giải đáp chi tiết trên đã giúp anh chị có một cái nhìn rõ ràng và tự tin hơn về dự án. SEI HARMONY thực sự là một sản phẩm hiếm có, một cơ hội an cư và đầu tư không thể bỏ lỡ.
Một lần nữa, tôi là Nguyễn Lộc Nghĩa. Cảm ơn anh chị đã kiên nhẫn đọc đến đây. Bất cứ khi nào anh chị cần thêm thông tin, cần một người đồng hành tin cậy để tham quan dự án và phân tích sâu hơn, đừng ngần ngại gọi cho tôi. Tôi luôn sẵn lòng phục vụ!
Hotline Mua Bán + Cho Thuê + Ký Gửi SEI Harmony: 0933.098.890

