Hạ tầng Setia Edenia có gì đặc biệt mà lại được nhiều nhà đầu tư “săn đón” đến vậy? Khi anh chị đi mua bất động sản, câu nói cửa miệng luôn là “vị trí, vị trí và vị trí”. Nhưng nói một cách bình dân, “vị trí” có tốt hay không là do “hạ tầng” quyết định. Một dự án có hạ tầng tốt, đang được mở đường, làm metro… thì chắc chắn giá trị sẽ tăng. Chúng tôi thấy rằng dự án căn hộ chung cư Setia Edenia đang nằm ở tâm điểm của “cú hích” hạ tầng lớn nhất TPHCM trong 10 năm tới. Bài viết này, chúng ta sẽ “mổ xẻ” kỹ xem dự án được hưởng lợi gì nhé!

Phân tích Hạ tầng Setia Edenia hiện hữu (Quốc lộ 13 & Sáp nhập TPHCM)

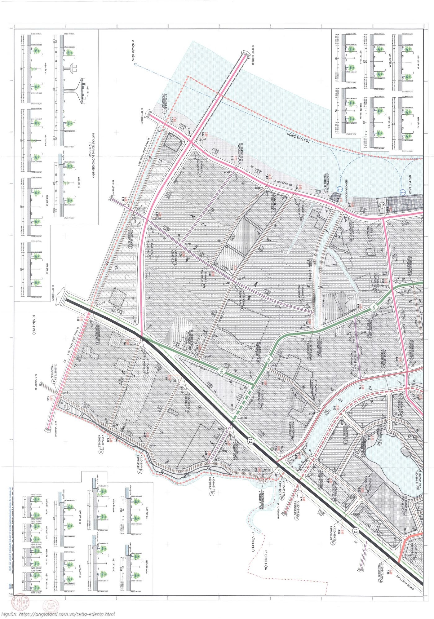
Hạ tầng Setia Edenia được hưởng lợi đầu tiên từ chính vị trí hiện hữu của nó. Dự án không nằm ở một nơi “đồng không mông quạnh” phải chờ 5-10 năm nữa mới có người ở. Ngược lại, nó nằm ngay trung tâm phường Lái Thiêu, một khu vực đã sầm uất, hiện hữu.
Hạ tầng dự án Setia Edenia: Mặt tiền Quốc lộ 13 (Đại lộ Bình Dương)

Hạ tầng dự án Setia Edenia sở hữu điểm “ăn tiền” đầu tiên là nằm ngay mặt tiền Quốc lộ 13 (Đại lộ Bình Dương). Đây là trục đường “xương sống” của khu vực, kết nối trực tiếp từ TPHCM (qua Cầu Bình Triệu) thẳng lên Thủ Dầu Một.
Vấn đề lớn nhất của QL13 là hay kẹt xe. Tin vui là tuyến đường này đang được đầu tư nâng cấp, mở rộng lên 8 làn xe. Khi dự án mở rộng này hoàn thành, việc di chuyển từ Setia Edenia về trung tâm TPHCM chỉ mất khoảng 20-25 phút, cực kỳ thuận tiện. Hạ tầng giao thông đi trước, giá trị bất động sản sẽ theo sau. Toàn bộ Khu đô thị Eco Xuân Lái Thiêu nơi dự án tọa lạc sẽ được hưởng lợi trực tiếp từ việc mở đường này.
Hạ tầng Setia Edenia Lái Thiêu hưởng lợi gì từ sáp nhập TPHCM?

Đây là yếu tố “thời thế” mà anh chị cần đặc biệt lưu ý. Hạ tầng Setia Edenia Lái Thiêu được hưởng lợi cực lớn từ việc Phường Lái Thiêu (trước đây thuộc Thuận An, Bình Dương) nay đã chính thức sáp nhập vào TP. Hồ Chí Minh.
Nói nôm na, chỉ một văn bản hành chính đã làm giá trị bất động sản khu vực này thay đổi. Từ “vùng ven” Bình Dương, Lái Thiêu trở thành một phường của TPHCM, tương tự như TP. Thủ Đức. Điều này kéo theo việc nhà nước sẽ phải dồn lực đầu tư hạ tầng mạnh mẽ hơn, đồng bộ hơn (điện, đường, trường, trạm) để xứng tầm với một khu vực của TPHCM. Anh chị mua Setia Edenia Lái Thiêu thời điểm này là đang “đón sóng” tăng giá nhờ sự thay đổi về hành chính và hạ tầng đô thị.
Hotline Mua Bán + So Sánh + Ký Gửi Setia Edenia : 0937.098.890
“Cú Hích” Tương Lai: Vành Đai 3 & Metro 3B Tác Động Đến Setia Edenia

Nếu như QL13 và sáp nhập TPHCM là giá trị của hiện tại, thì “cú hích” thực sự làm thay đổi giá trị căn hộ Setia Edenia nằm ở 2 đại dự án hạ tầng tương lai: Vành đai 3 và Metro 3B.
Vành đai 3 (Thông xe 2026): “Đòn bẩy” thay đổi cuộc chơi

Tuyến đường Vành đai 3 là dự án trọng điểm quốc gia, và nó là “đòn bẩy” thay đổi cuộc chơi của toàn khu vực. Tuyến đường này sẽ kết nối Lái Thiêu (khu vực Setia Edenia) đi thẳng đến Nhơn Trạch (Đồng Nai), Củ Chi, Long An mà không cần phải đi xuyên qua trung tâm TPHCM.
Khi tuyến đường này thông xe vào năm 2026 (trùng với thời điểm dự án cất nóc), giá trị bất động sản của cả khu vực Lái Thiêu sẽ tăng vọt. Cư dân Setia Edenia chỉ mất vài phút là lên Vành đai 3, từ đó đi Sân bay Long Thành hay về miền Tây đều cực kỳ thuận tiện. Đây là yếu tố chờ tăng giá rõ ràng nhất mà anh chị không thể bỏ qua khi xem xét Chính sách bán hàng Setia Edenia.
Metro 3B (Khởi công 2027): Yếu tố tăng giá dài hạn

Nếu Vành đai 3 giải quyết việc đi “ngang”, thì Metro 3B (Bến Thành – Hiệp Bình Phước – Lái Thiêu) giải quyết việc đi “dọc” vào trung tâm. Theo quy hoạch, tuyến metro này dự kiến khởi công năm 2027 (trùng thời điểm bàn giao nhà Setia Edenia) và sẽ có trạm dừng (Ga Cầu Ông Bố) rất gần dự án.
Anh chị cứ nhìn kinh nghiệm của tuyến Metro số 1 (Bến Thành – Suối Tiên) thì biết, các dự án bất động sản gần metro có giá trị cao hơn 15-25% so với khu vực xung quanh. Mặc dù đây là câu chuyện của 3-5 năm tới, nhưng bất động sản là đầu tư cho tương lai. Khi tuyến metro này hình thành, nó sẽ là một cú hích tăng giá lần thứ hai cho dự án, đồng thời giúp việc đi làm tại trung tâm Quận 1 trở nên dễ dàng hơn bao giờ hết. Nhiều dự án như dự án La Pura cũng đang chờ đợi tuyến metro này.
Hotline Mua Bán + So Sánh + Ký Gửi Setia Edenia : 0937.098.890
Hạ tầng Setia Edenia ảnh hưởng đến giá trị căn hộ như thế nào?

Hạ tầng Setia Edenia không chỉ là những con đường, nó ảnh hưởng trực tiếp đến Bảng giá Setia Edenia và quyết định đầu tư của anh chị.
Hạ tầng chung cư Setia Edenia: Sự cộng hưởng của “bộ ba” QL13, VĐ3, Metro

Giá trị của hạ tầng chung cư Setia Edenia nằm ở sự cộng hưởng của cả 3 yếu tố:
1. Hiện tại (QL13 mở rộng): Giải quyết vấn đề di chuyển hàng ngày, giúp tăng giá trị ở thực.
2. Ngắn hạn (Vành đai 3 – 2026): Mở ra kết nối liên vùng, “đón sóng” tăng giá khi thông xe.
3. Dài hạn (Metro 3B – 2027 trở đi): Tăng giá trị bền vững, thay đổi hoàn toàn thói quen di chuyển.
Một dự án có cả 3 lớp sóng hạ tầng như vậy là cực kỳ hiếm. Nó đảm bảo cho anh chị dù mua ở hay đầu tư, giá trị căn hộ sẽ tăng bền vững theo thời gian, chứ không phải tăng ảo.
So sánh với các dự án lân cận (The Emerald Garden View)

Khi so sánh với các dự án lân cận, ví dụ như dự án The Emerald Garden View, mỗi dự án có một thế mạnh riêng. Tuy nhiên, lợi thế tuyệt đối của Setia Edenia là nằm ngay “mặt tiền” của QL13, lại là tâm điểm giao thoa của cả Vành đai 3 và Metro. Các dự án khác có thể nằm sâu hơn, hưởng lợi gián tiếp, nhưng Setia Edenia là dự án hưởng lợi trực tiếp và rõ ràng nhất. Khi hạ tầng hoàn thành, giá trị của nó sẽ bật lên mạnh nhất.
Lời khuyên của Sàn Giao Dịch Lộc Phát Hưng

Là Lộc Phát Hưng, chúng tôi có lời khuyên chân thành: “Mua nhà là mua vị trí và hạ tầng tương lai”. Thời điểm tốt nhất để mua là khi hạ tầng đã có quy hoạch rõ ràng (như Setia Edenia) nhưng chưa hoàn thành. Vì khi đường làm xong, metro chạy rồi, giá đã tăng 30-50% và anh chị đã lỡ mất cơ hội.
Sự kết hợp giữa Hạ tầng Setia Edenia, uy tín của chủ đầu tư SP Setia, và một Thiết kế Setia Edenia quá tốt (trần 3.4m, 100% thoáng sáng) với gói Vật liệu bàn giao Setia Edenia cao cấp… làm cho dự án này trở thành lựa chọn “an toàn” và “tiềm năng” nhất khu vực. Anh chị cần một bảng phân tích chi tiết hơn về các mốc thời gian tăng giá theo hạ tầng, đừng ngần ngại gọi cho chúng tôi!
Hotline Mua Bán + So Sánh + Ký Gửi Setia Edenia : 0937.098.890

